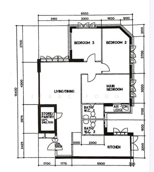
1 HDB Flat for Sale - 3 Bedrooms at 75B Redhill Road
Map View
We’ve shown you all the matches
Almost there!
Refining your recommendations.
This may take a few seconds...
75B Redhill Road
75B Redhill Road 152075(D03) Alexandra / Commonwealth
Summary
75B Redhill Road
Read more
Project details
TypeHDB
Completion year2005
Tenure99-year Leasehold
No. of blocks1
No. of floors30
DeveloperHousing & Development Board (HDB)
Explore PropertyGuru
Properties by ownership




















