2 Condominiums for Rent - Mid Floor at Ferraria Park Condo
Refining your recommendations.
This may take a few seconds...
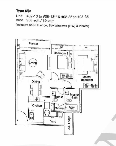
Ferraria Park Condo is a condominium project which is located in Flora Drive, 506941, Changi / Pasir Ris (D17-18) District 17. It was completed in 2010, it comprises of 8 storeys and 475 units. Ferraria Park Condo offers a wide range of facilities at your disposal. These include swimming pool, lap pool, wading pool, family pool, reflecting pools, function room, gymnasium, meeting room, granite decks, timber decks, pool pavilion, ponds, pocket courts, sunken gardens, playgrounds, barbeque pavilions, sculpture, tennis courts, and car park. 34 units are available for buying purpose and 7 for rental purpose. The tenure of this project is freehold property. Tripartite Developers Pte Limited are the developers of this project. Skilled workers of Singapore are responsible for building this Condominium projects numerous terraced house, housing projects and condominiums. Ferraria Park Condo apartments promises a luxurious high life, on a luxurious high-rise apartment. The main objective of Ferraria Park Condo is to provide a friendly and safe environment to the residents. It is a family oriented project which has many amenities around it. The architect of the building is very unique with strong construction. There are artificial plants with lightning around to enhance the beauty of the place. All the facilities are available at an affordable price. The developer has put in a lot of effort to give it a sense of luxury lifestyle in the apartment must not miss this opportunity to invest in this project. Strict security system is ensured to protect families with kids. Ferraria Park Condo is a freehold condominium located at 8 - 28 Flora Drive (S) 506941 in District 17 near Tampines MRT Station. DT33 Tampines East MRT Station, DT34 Upper Changi MRT and EW3 Simie MRT Station are the nearest to the condomonium. Public transportation has made the lives of residents easy who do not have their own vehicles. Bus stops are also located at walking distances. Opposite Palm Isles, Parc Olympia and Carissa Pk are the nearest bus stops in the area. This project is created with immense planning to provide all the basic needs to the residents. The location is also accessible easily via different routes. There are different amenities located near this building. Numerous restaurants and eating establishments are in the vicinity and residents can go to the nearby Shopping Centre or the Market and Food Centre to fulfil more than just daily necessities. Ferraria Park Condo Located just minutes away from various schools, Ferraria Park is convenient for children who will be delighted to get a few extra minutes of sleep as they need not get up extra early to commute to school. Some of these schools are East Spring Primary and Secondary School, the Japanese Primary School, Tampines Junior College, and Tampines North Primary School. Grocery Shopping is made easy as Cheers, Shop N Save and Tampines Mart are only 2 minutes away. Pizza Hut Delivery - Tampines MartDelifrance Express - Esso Upper Changi NorthKopitiam Food courtThe Japanese School Singapore Changi CampusCreative Twinkles Preschool - TampinesCamberley Pre-School LoyangThe Japanese School Singapore Changi PlaygroundTampines Mart Wet MarketSmile Mini MartGiant SupermarketTampines Leisure ParkTampines Tree Garden Ferraria Park Condo project was completed in 2010. The average price ranges from $ 660,000 to $ 1,650,000. It has 475 units in total. 34 units are available for buying purpose and 7 units for rental purpose. The unit for buying purpose is available with 3 bedrooms and 2 bathrooms with 1023 sqft units. The unit is with 1 bedrooms and 1 bathrooms with 646 sqft. The units with 2 bedrooms and 2 bathrooms has 916 sqft. All the bedrooms and bathrooms are totally furnished. It has enclosed kitchen with custom made steel shelves and cabinets. Project name: Ferraria Park CondoProject Type: CondominiumUnits: 475District: 17 (Changi Airport, Changi Village) Unit types:3 bedrooms 2 bathrooms -:1065 sqft2 bedrooms 2 bathrooms – 1109 sqftEdelweiss Park CondoCarissa Park CondoThe JovellPalm IslesHedges Park CondominiumThe InfloraParc OlympiaEdelweiss Park Condo
DeveloperTripartite Developers Pte Limited
































