Siglap V: 1 Units for Sale
Refining your recommendations.
This may take a few seconds...
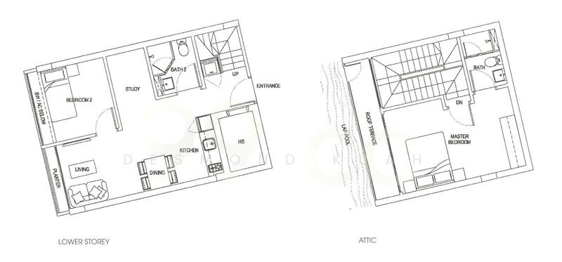
Siglap V is a freehold condominium located along East Coast Road, at 459084, District 15. The project comprises around 114 residential units, spread across multiple 4-storey buildings. Siglap V was completed by DB2 Realty Development Pte Ltd in 2014. Located within the East Coast, the residence is just minutes away from the coastline, filled with sandy beaches and sprawling woodland areas. Siglap V offers cozier, more practical living options for singles or small groups; units are available in 1 to 3-bedroom layouts, with built-up areas of between 360 to 1,442 sqft. DB2 Realty, also known as DB2 Land, are an established Singapore-based property developed with a diverse portfolio of residential and commercial projects found throughout the Asia - Pacific. DB2 Land prides itself for its creative, innovative architectural designs, coupled with consistent high quality in every successful project. Their success is evident in their rapid growth, stemming from their incorporation in 2006. Siglap V is located just minutes away from East Coast Park, a sprawling expanse of woodland and beaches that line the eastern coastline. Seaside restaurants, theme parks, woodland trails and other activities and facilities can all be found at the East Coast Park, offering an array of family-friend activities. The surrounding neighbourhood is laidback and peaceful, making it a highly attractive choice for many residents. Several international schools, medical facilities, and various other facilities and amenities are conveniently located within the vicinity, providing a comfortable and hassle-free lifestyle for residents at Siglap V. As it is located in the eastern region of Singapore, residents are distanced from the heavy traffic and crowds of the city centre, while remaining easily accessible via the various expressways and train networks that run in close proximity to the compound. Additionally, Siglap V offers a modest selection of private facilities, such as a swimming pol, gymnasium room and barbeque area. Basement parking spaces are allocated, and the compound is gated and monitored by 24-hour security. Siglap V is located less than a 10-minute drive away from Bedok MRT Station along the East West Line. A stretch of bus stops can also be found in the vicinity, less than a 5-minute walk away. Private transport owners heading towards the international business district can take the East Coast Parkway and expect to arrive within around half an hour. Alternatively, drivers travelling to the Orchard Road shopping district can expect to reach within 20 minutes via the Pan Island Expressway (PIE). Jin WeeKatong DelightsMikawa Yakitori Sekolah Indonesia SingapuraGlobal Indian International SchoolVictoria School Access Medical (East Coast)Bedok Medical CentreSt Andrew’s Community Hospital Siglap CentreBedok PointVelan Super Mart Siglap V is a freehold condominium comprising 114 residential units hosted across multiple 4-storey buildings. Completed in 2014, units currently hols an estimated sales price of approximately S$ 660,000 up to S$ 1,500,000, depending on unit size and layout. Rental prices fall between around S$ 2,000 up to S$ 2,500 per month. Units are available in 1 to 3-bedroom layouts, with built-up areas ranging between 360 to 1,442 sqft. Project Name: Siglap VType: Freehold CondominiumDistrict: 15 Unit Types:1-bedroom (360 - 797 sqft)2-bedroom (540 - 1,162 sqft)3-bedroom (990 - 1,442 sqft) The following projects are by the same developer as Siglap V:The Ambience The following developments are in the same neighbourhood as Siglap V: Amber ParkMeyer MansionSeaside ResidencesSilverseaAmber 45Frankel Estate
DeveloperDB2 Realty Developer
Explore PropertyGuru
Siglap V is a freehold condominium located along East Coast Road, at 459084, District 15. The project comprises around 114 residential units, spread across multiple 4-storey buildings. Siglap V was completed by DB2 Realty Development Pte Ltd in 2014. Located within the East Coast, the residence is just minutes away from the coastline, filled with sandy beaches and sprawling woodland areas. Siglap V offers cozier, more practical living options for singles or small groups; units are available in 1 to 3-bedroom layouts, with built-up areas of between 360 to 1,442 sqft. DB2 Realty, also known as DB2 Land, are an established Singapore-based property developed with a diverse portfolio of residential and commercial projects found throughout the Asia - Pacific. DB2 Land prides itself for its creative, innovative architectural designs, coupled with consistent high quality in every successful project. Their success is evident in their rapid growth, stemming from their incorporation in 2006. Siglap V is located just minutes away from East Coast Park, a sprawling expanse of woodland and beaches that line the eastern coastline. Seaside restaurants, theme parks, woodland trails and other activities and facilities can all be found at the East Coast Park, offering an array of family-friend activities. The surrounding neighbourhood is laidback and peaceful, making it a highly attractive choice for many residents. Several international schools, medical facilities, and various other facilities and amenities are conveniently located within the vicinity, providing a comfortable and hassle-free lifestyle for residents at Siglap V. As it is located in the eastern region of Singapore, residents are distanced from the heavy traffic and crowds of the city centre, while remaining easily accessible via the various expressways and train networks that run in close proximity to the compound. Additionally, Siglap V offers a modest selection of private facilities, such as a swimming pol, gymnasium room and barbeque area. Basement parking spaces are allocated, and the compound is gated and monitored by 24-hour security. Siglap V is located less than a 10-minute drive away from Bedok MRT Station along the East West Line. A stretch of bus stops can also be found in the vicinity, less than a 5-minute walk away. Private transport owners heading towards the international business district can take the East Coast Parkway and expect to arrive within around half an hour. Alternatively, drivers travelling to the Orchard Road shopping district can expect to reach within 20 minutes via the Pan Island Expressway (PIE). Jin WeeKatong DelightsMikawa Yakitori Sekolah Indonesia SingapuraGlobal Indian International SchoolVictoria School Access Medical (East Coast)Bedok Medical CentreSt Andrew’s Community Hospital Siglap CentreBedok PointVelan Super Mart Siglap V is a freehold condominium comprising 114 residential units hosted across multiple 4-storey buildings. Completed in 2014, units currently hols an estimated sales price of approximately S$ 660,000 up to S$ 1,500,000, depending on unit size and layout. Rental prices fall between around S$ 2,000 up to S$ 2,500 per month. Units are available in 1 to 3-bedroom layouts, with built-up areas ranging between 360 to 1,442 sqft. Project Name: Siglap VType: Freehold CondominiumDistrict: 15 Unit Types:1-bedroom (360 - 797 sqft)2-bedroom (540 - 1,162 sqft)3-bedroom (990 - 1,442 sqft) The following projects are by the same developer as Siglap V:The Ambience The following developments are in the same neighbourhood as Siglap V: Amber ParkMeyer MansionSeaside ResidencesSilverseaAmber 45Frankel Estate
DeveloperDB2 Realty Developer







