Prestige Heights - 4 Units for Sale
Refining your recommendations.
This may take a few seconds...
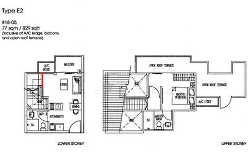
The Prestige Heights is an apartment development project that is located in District 12 in Singapore. The Prestige Heights offers freehold tenure to its tenants. One of the greatest advantage that the residents of Prestige Heights can make use of is its extremely high accessibility. There is a lot of bus stops surrounding the development and one MRT stations within the proximity as well. Furthermore, the Prestige Heights is suitable for a growing family to live in because it is located close to a number of schools in the area. The Prestige Heights development project was completed quite recently in the year of 2013 and it was developed by the Fragrance Land Pte Ltd. Fragrance Land Pte Ltd is a property developer with a presence across three continents today, Asia, Australia and Europe. The Prestige Heights development project provides complete basic condominium facilities to its residents. First of all, the security within the compound of Prestige Heights is 24 hours and this is to ensure the safety and security of the residents. The car park that is available for the vehicle owners is located in the basement and this is able to protect them from the rain and sun. There is also a swimming pool for the adults who enjoy swimming during their free time. There is a Jacuzzi for the residents to take some time off to enjoy a nice, relaxing water jet massage. Last but not least, there is a gymnasium room to help the residents keep themselves in shape. Having extremely high levels of accessibility is one of Prestige Heights’s strongest selling points as well. There is a lot of bus stations located within the vicinity of the development project and these bus stations are able to take the residents to wherever they need to. The nearest bus stop is located before Kim Keat Lane which is only about 140 metres and 2 minutes of walking distance away from the development. The nearest MRT station is the Toa Payoh MRT station which is about 1.15 kilometres and 15 minutes of walking distance away from the development. As for vehicle owners, the business hub or Orchard Road is only about 10 to 15 minutes of driving distance away via the Racecourse. Hong Wen SchoolBalestier Hill Secondary SchoolBendemeer Secondary SchoolPCF Sparklelots Preschool – Jalan RajahNorthlight School Intra Medical Pte LtdOral Implant Supplies and ServicesSK Pharma Healthcare GroupNational Skin Centre Clinical LaboratoryUnity Zhong Shan Park Supermarket CreativesU Stars Supermarket @ 211Sheng Siong SupermarketGiant Supermarket Kim Keat Avenue Oopen Pasta & GrillEastern Rice Dumping | Dong Yuan Bak ChangBalestier Bak Kut TehTandoori CornerRobert Mee Siam Balestier PlazaCrescent BuildingBalestier PointZhong Shan MallToa Payoh Mall The Prestige Heights is an apartment development project that offers freehold tenure to its residents and it comprises a total number of 154 residential units. The development is located along Balestier Road, 329778, Balestier / Geylang (D12-14). The selling price for each unit ranges from SGD580K to SGD1.1mil. The rental price for each unit in the Prestige Heights ranges from SGD1.3K to SGD2.8K. Project Name: Prestige HeightsDistrict: 12Configuration: 154 residential units. Unit types for Prestige Heights:1 bedroom and 1 bath1 bedroom and 2 baths2 bedrooms and 1 baths3 bedrooms and 2 baths The following development projects are developed by the same developer as Prestige Heights:Jervois TreasuresNovena Regency The following development projects are in the same neighbourhood as Prestige Heights:Eight RiversuitesJui ResidencesTrevistaThe InterweaveGem ResidencesKallang Riverside
DeveloperFragrance Land Pte Ltd




















