979B Buangkok Crescent - 2 Units for Sale
Map View
We’ve shown you all the matches
Almost there!
Refining your recommendations.
This may take a few seconds...
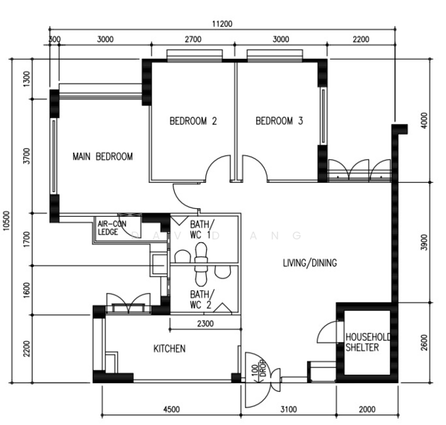
979B Buangkok Crescent
979B Buangkok Crescent 532979(D19) Hougang / Punggol / Sengkang
Summary
979B Buangkok Crescent
Read more
Project details
TypeHDB
PriceS$ 575K - 660K
Completion year2001
Tenure99-year Leasehold
No. of blocks1
No. of floors16
DeveloperHousing & Development Board (HDB)
Explore PropertyGuru
Properties by ownership









