92 Bedok North Avenue 4 - 3 Units for Sale
Map View
We’ve shown you all the matches
Almost there!
Refining your recommendations.
This may take a few seconds...
92 Bedok North Avenue 4
92 Bedok North Avenue 4 460092(D16) Bedok / Upper East Coast
Summary
92 Bedok North Avenue 4
Read more
Project details
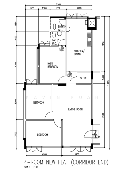
TypeHDB
PriceS$ 490K - 520K
Completion year1978
Tenure99-year Leasehold
No. of blocks1
No. of floors14
DeveloperHousing & Development Board (HDB)
Explore PropertyGuru
Properties by ownership







