619C Punggol Drive - 6 Units for Sale
Map View
We’ve shown you all the matches
Almost there!
Refining your recommendations.
This may take a few seconds...
619C Punggol Drive
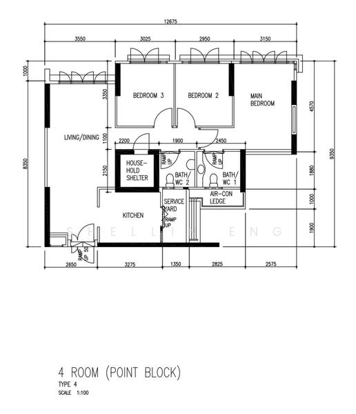
619C Punggol Drive 823619(D19) Hougang / Punggol / Sengkang
Summary
Punggol Breeze
Read more
Project details
TypeHDB
PriceS$ 608K - 750K
Completion year2012
Tenure99-year Leasehold
No. of blocks1
No. of floors17
Top facilities
Car park
DeveloperHousing & Development Board (HDB)
Explore PropertyGuru
Properties by ownership








