537 Bukit Batok Street 52 - 1 Units for Sale
Map View
We’ve shown you all the matches
Almost there!
Refining your recommendations.
This may take a few seconds...
537 Bukit Batok Street 52
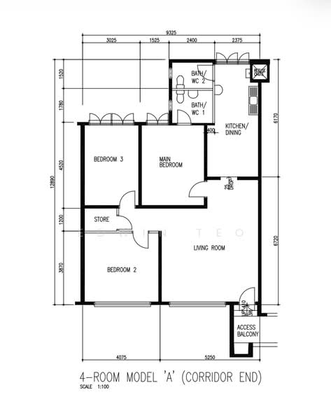
537 Bukit Batok Street 52 650537(D23) Dairy Farm / Bukit Panjang / Choa Chu Kang
Summary
537 Bukit Batok Street 52
Read more
Project details
TypeHDB
PriceS$ 408K - 548K
Completion year1985
Tenure99-year Leasehold
No. of blocks1
No. of floors12
DeveloperHousing & Development Board (HDB)
Explore PropertyGuru
Properties by ownership
Properties by furnishing
Properties by price per sqft.
Properties by year constructed


















