484A Choa Chu Kang Avenue 5 - 3 Units for Sale
Map View
We’ve shown you all the matches
Almost there!
Refining your recommendations.
This may take a few seconds...
484A Choa Chu Kang Avenue 5
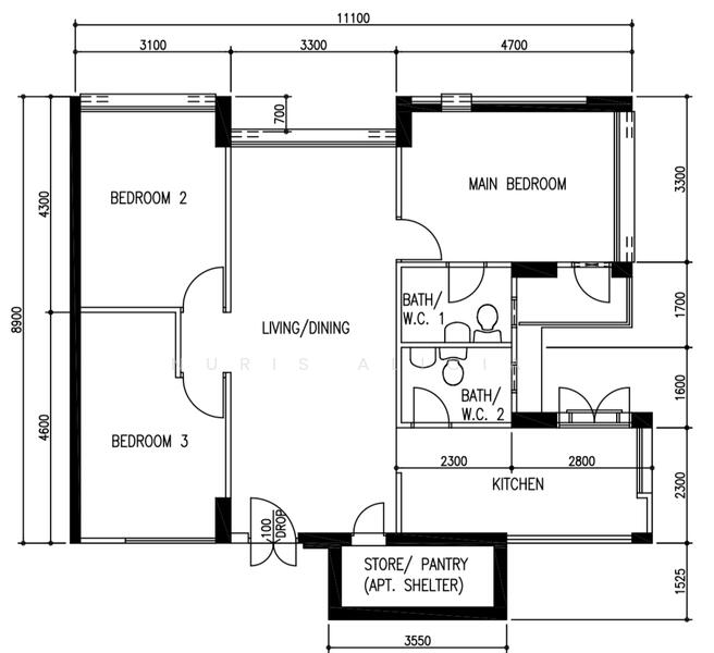
484A Choa Chu Kang Avenue 5 681484(D23) Dairy Farm / Bukit Panjang / Choa Chu Kang
Summary
484A Choa Chu Kang Avenue 5
Read more
Project details
TypeHDB
PriceS$ 510K - 525K
Completion year1997
Tenure99-year Leasehold
No. of blocks1
No. of floors16
DeveloperHousing & Development Board (HDB)
Explore PropertyGuru
Properties by ownership








