471 Jurong West Street 41 - 2 Units for Sale
Map View
We’ve shown you all the matches
Almost there!
Refining your recommendations.
This may take a few seconds...
471 Jurong West Street 41
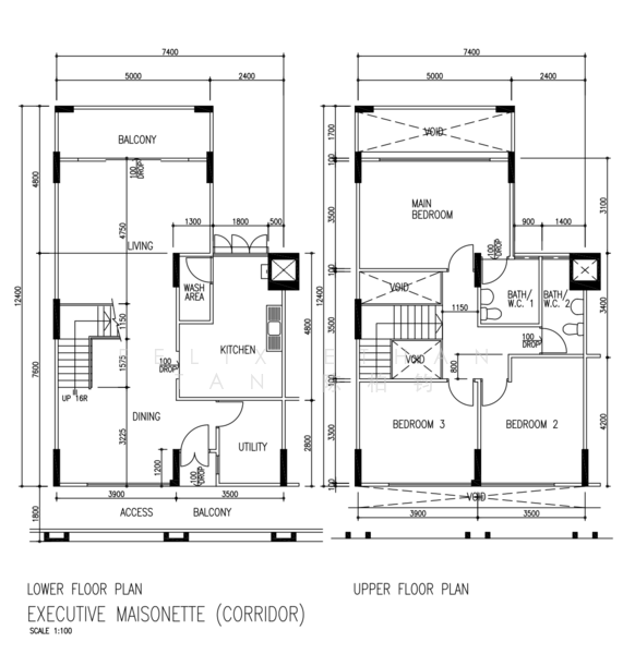
471 Jurong West Street 41 640471(D22) Boon Lay / Jurong / Tuas
Summary
471 Jurong West Street 41
Read more
Project details
TypeHDB
PriceS$ 880K - 1M
Completion year1984
Tenure99-year Leasehold
No. of blocks1
No. of floors15
DeveloperHousing & Development Board (HDB)
Explore PropertyGuru
Properties by ownership









