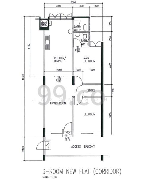
420 Bukit Batok West Avenue 2 - 2 Units for Sale
Map View
We’ve shown you all the matches
Almost there!
Refining your recommendations.
This may take a few seconds...
420 Bukit Batok West Avenue 2
420 Bukit Batok West Avenue 2 650420(D23) Dairy Farm / Bukit Panjang / Choa Chu Kang
Summary
420 Bukit Batok West Avenue 2
Read more
Project details
TypeHDB
Completion year1985
Tenure99-year Leasehold
No. of blocks1
No. of floors12
DeveloperHousing & Development Board (HDB)
Explore PropertyGuru
Properties by ownership














