348 Bukit Batok Street 34 - 1 Units for Sale
Map View
We’ve shown you all the matches
Almost there!
Refining your recommendations.
This may take a few seconds...
348 Bukit Batok Street 34
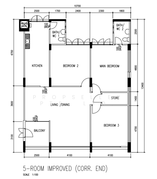
348 Bukit Batok Street 34 650348(D23) Dairy Farm / Bukit Panjang / Choa Chu Kang
Summary
348 Bukit Batok Street 34
Read more
Project details
TypeHDB
Completion year1986
Tenure99-year Leasehold
No. of blocks1
No. of floors14
DeveloperHousing & Development Board (HDB)
Explore PropertyGuru
Properties by ownership


















