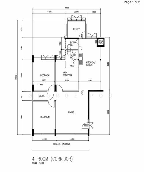
33 Marsiling Drive - 2 Units for Sale
Map View
We’ve shown you all the matches
Almost there!
Refining your recommendations.
This may take a few seconds...
33 Marsiling Drive
33 Marsiling Drive 730033(D25) Admiralty / Woodlands
Summary
33 Marsiling Drive
Read more
Project details
TypeHDB
PriceS$ 450K - 455K
Completion year1976
Tenure99-year Leasehold
No. of blocks1
No. of floors13
DeveloperHousing & Development Board (HDB)
Explore PropertyGuru
Properties by ownership














