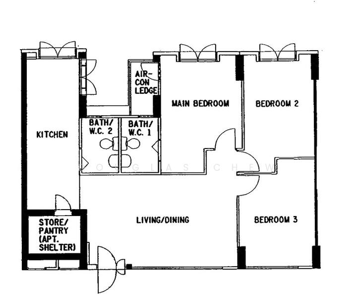
301B Anchorvale Drive - 2 Units for Sale
Map View
We’ve shown you all the matches
Almost there!
Refining your recommendations.
This may take a few seconds...
301B Anchorvale Drive
301B Anchorvale Drive 542301(D19) Hougang / Punggol / Sengkang
Summary
301B Anchorvale Drive
Read more
Project details
TypeHDB
PriceS$ 590K - 675K
Completion year2000
Tenure99-year Leasehold
No. of blocks1
No. of floors15
DeveloperHousing & Development Board (HDB)
Explore PropertyGuru
Properties by ownership
















