289A Compassvale Crescent - 3 Units for Sale
Map View
We’ve shown you all the matches
Almost there!
Refining your recommendations.
This may take a few seconds...
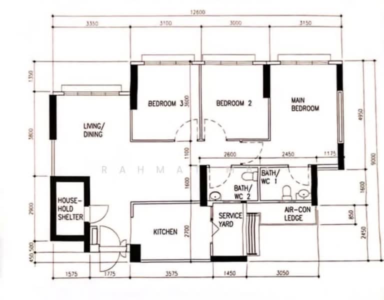
289A Compassvale Crescent
289A Compassvale Crescent 541289(D19) Hougang / Punggol / Sengkang
Summary
289A Compassvale Crescent
Read more
Project details
TypeHDB
PriceS$ 558K - 820K
Completion year2016
Tenure99-year Leasehold
No. of blocks1
No. of floors15
Top facilities
Car park
DeveloperHousing & Development Board (HDB)
Explore PropertyGuru
Properties by ownership















