227 Lorong 8 Toa Payoh - 3 Units for Sale
Map View
We’ve shown you all the matches
Almost there!
Refining your recommendations.
This may take a few seconds...
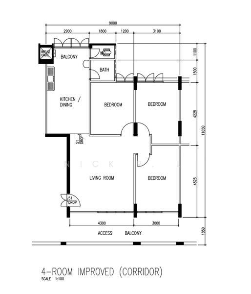
227 Lorong 8 Toa Payoh
227 Lorong 8 Toa Payoh 310227(D12) Balestier / Toa Payoh
Summary
227 Lorong 8 Toa Payoh
Read more
Project details
TypeHDB
PriceS$ 488K - 500K
Completion year1975
Tenure99-year Leasehold
No. of blocks1
No. of floors16
DeveloperHousing & Development Board (HDB)
Explore PropertyGuru
Properties by ownership


























