107 Bukit Batok West Avenue 6 - 2 Units for Sale
Map View
We’ve shown you all the matches
Almost there!
Refining your recommendations.
This may take a few seconds...
107 Bukit Batok West Avenue 6
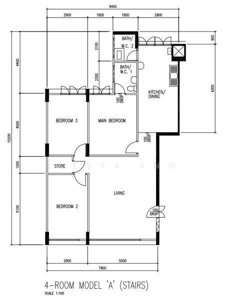
107 Bukit Batok West Avenue 6 650107(D23) Dairy Farm / Bukit Panjang / Choa Chu Kang
Summary
107 Bukit Batok West Avenue 6
Read more
Project details
TypeHDB
PriceS$ 600K - 620K
Completion year1984
Tenure99-year Leasehold
No. of blocks1
No. of floors10
DeveloperHousing & Development Board (HDB)
Explore PropertyGuru
Properties by ownership














