Kingsford Hillview Peak - 8 Units for Rent
Refining your recommendations.
This may take a few seconds...
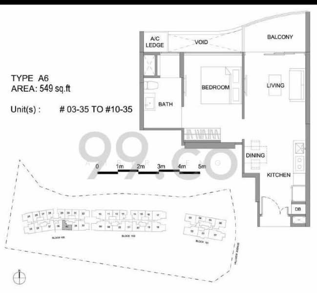
Kingsford Hillview PeakLocated in a quiet and green private enclave within District 23, Kingsford Hillview Peak is a private residential development with 512 units spread over 3 blocks – 2 of 11 storeys and 1 of 26 storeys. Included in that number are 37 penthouses. Kingsford Hillview Peak offers residents a good choice of facilities, including a sky tennis court, golf simulator, 50 metre lap pool and outdoor movie theatre. Despite its tranquil setting, Kingsford Hillview Peak has the modern HillV2 shopping mall located next door, and Hillview MRT on the Downtown Line is just a 5-minute walk away, giving access to the CBD in under 40 minutes, and Bugis in 20 minutes.Kingsford Development (KDL) is a real estate company with an extensive portfolio of investment and development properties in Asia. It has established itself as a customer oriented firm that creates innovative and quality homes at competitive prices.Kingsford Hillview Peak – Unique Selling PointsKingsford Hillview Peak is situated in a quiet and leafy private residential enclave giving residents peace and tranquillity and a natural looking environment. It does not lack in modern conveniences and amenities however, HillV2 shopping mall is literally next door to Kingsford Hillview Peak, offering a good range of retail and dining options. Hillview MRT Station is also only a 5-minute walk from the development.Kingsford Hillview Peak – AccessibilityThe nearest MRT to Kingsford Hillview Peak is Hillview Station on the Downtown Line, which is a 5-minute walk away. From there you can get into Bugis in 20 minutes and the CBD in under 40 minutes. A bus stop just outside Kingsford Hillview Peak serves Bukit Batok, Hillview Avenue, Upper Bukit Timah and Bukit Panjang. Drivers benefit from the proximity of Upper Bukit Timah Road, the KJE, PIE and BKE, meaning in good conditions it is approximately a 15-minute journey into the CBD. The HillV2 shopping mall is very handily located right next to the development.Kingsford Hillview Peak - Amenities & AttractionsDining near Kingsford Hillview Peak:Wine ConnectionKinsa Sushi RestaurantJoyden Canton KitchenThe ARTShopping near Kingsford Hillview Peak:Hill V2The Rail MallBeauty World Shopping CentreBukit Timah Shopping CentreWest MallSchools and Education near Kingsford Hillview Peak:CHIJ Our Lady Queen of PeaceAssumption English SchoolAssumption Pathway SchoolChestnut Drive Secondary SchoolKingsford Hillview Peak - Project informationLocated in a quiet and green private enclave, Kingsford Hillview Peak is a residential development made up of two 11 storey blocks and one 26 storey block. As well as a large number of penthouses, the project has a good array of 1, 2, 3 and 4 bed units. Units at Kingsford Hillview Peak all come with Electrolux appliances, but are not the largest available on the island, the common bathrooms for example being only really big enough to accommodate one person at a time. In terms of facilities, Kingsford Hillview Peak has a lot to offer, including a sky tennis court, jogging path, floating gym, golf simulator, 50 metre lap pool and outdoor movie theatre.Project Name: Kingsford Hillview PeakAddress: Hillview RiseSite area: Approx. 136,147 sqftTenure: 99 years from 16th March 2011District: 23Configuration: 512 residential unitsUnit types:230 x 1-bedroom units (517 – 732 sqft)10 x 1-bedroom + study units (603 – 732 sqft)145 x 2-bedroom units (775 – 1,076 sqft)65 x 3-bedroom units (1,044 – 1,399 sqft)25 x 4-bedroom units (1,249 – 1,572 sqft)37 x penthouse units (527 – 2,530 sqft)Maintenance fees: Approx. $225 to $450Parking lots:512 normal lots5 handicap lotsExpected TOP: March 2017Expected legal completion: March 2020Kingsford Hillview Peak - Historical DataAs of January 2016, the number of caveated transactions at Kingsford Hillview Peak stood at 259 out of a total of 512 available units with all but 13 coming in below $1.5M. The prices for those sales ranged from $672K to $2.044M. With regards to the median prices for Kingsford Hillview Peak, from that data we can see that the figures for the 1 bed and 1 bed + study units were at $1,355 psf and $1,409 psf respectively, the 2, 3 and 4 bed units were at $1,330 psf, $1,331 psf and $1,298 psf respectively, while those for the penthouses were $967 psf.Kingsford Hillview Peak - Related ProjectsThe following project is by the same developer as Kingsford Hillview Peak:Kingsford WaterbayKingsford Hillview Peak - Nearby ProjectsThe following developments are in the same neighbourhood as Kingsford Hillview Peak:The Skywoodsthe HillierHillview ParkGlendale Park
DeveloperKingsford Development Pte Ltd





















