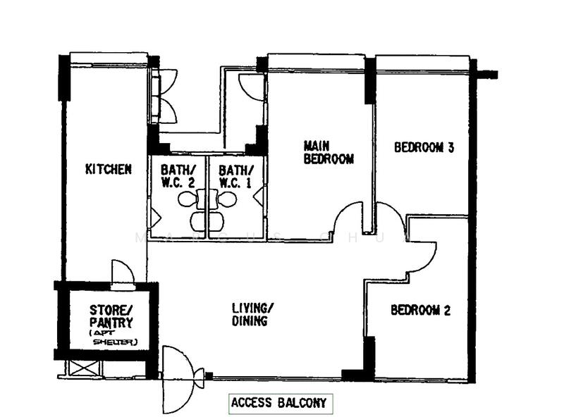
141 Lorong 2 Toa Payoh - 2 Units for Rent
Map View
We’ve shown you all the matches
Almost there!
Refining your recommendations.
This may take a few seconds...
141 Lorong 2 Toa Payoh
141 Lorong 2 Toa Payoh 311141(D12) Balestier / Toa Payoh
Summary
141 Lorong 2 Toa Payoh
Read more
Project details
TypeHDB
PriceS$ 1.2K - 3.8K
Completion year1999
Tenure99-year Leasehold
No. of blocks1
No. of floors30
DeveloperHousing & Development Board (HDB)









