109 Ang Mo Kio Avenue 4 - 1 Units for Rent
Map View
We’ve shown you all the matches
Almost there!
Refining your recommendations.
This may take a few seconds...
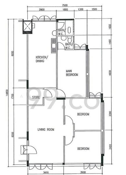
109 Ang Mo Kio Avenue 4
109 Ang Mo Kio Avenue 4 560109(D20) Ang Mo Kio / Bishan / Thomson
Summary
109 Ang Mo Kio Avenue 4
Read more
Project details
TypeHDB
Completion year1978
Tenure99-year Leasehold
No. of blocks1
No. of floors12
DeveloperHousing & Development Board (HDB)























