876C Tampines Avenue 8
876C Tampines Avenue 8
S$ 950,000
Starting From3
Beds
2
Baths
1,216
sqft (floor)
S$ 781
psf (floor)
About this property
Serious sellers, corner unit, no need extension, minimal build ins.
SERIOUS SELLER | 5-ROOM | NO EXTENSION NEEDED | MINIMAL BUILD IN BUT WELL MAINTAINED
- Newly MOP-ed: Be the next owner of this young, 5-year-old HDB (Tampines GreenBloom).
- Mid-High Floor: Offers great elevation, privacy, and natural airflow.
- Ethnic Quota not available to certain groups.
- True South Facing: Windows face South. No afternoon sun, ensuring a cool and bright home.
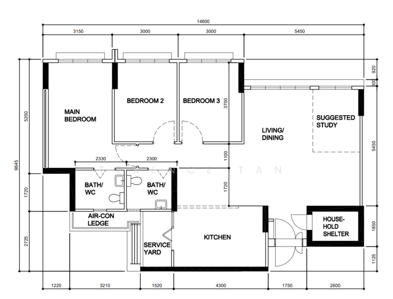
- Super Spacious: 1,216 sqft (113 sqm) 5A model. Rare corner unit with private corridor space.
- Bright & Breezy: Excellent cross-ventilation throughout the living and dining hall.
- Good Price: Genuine seller looking for a fair market deal. Best value 5-room in this cluster.
- Schools (1km - 2km): Elite options nearby including St. Hilda's Primary and Poi Ching School.
- Daily Amenities: 4 min walk to U Stars Supermarket, Kopitiam, and shops.
- Nature: 3 min walk to Tampines Green Forest Park & Rain Garden.
- Transport: Quick bus ride to Tampines West MRT (DTL) and easy access to PIE/TPE.
Genuine seller. Don't miss out on the best-priced 5-room in the area.
Contact Terence Tan at 9***** to view this week.
- Newly MOP-ed: Be the next owner of this young, 5-year-old HDB (Tampines GreenBloom).
- Mid-High Floor: Offers great elevation, privacy, and natural airflow.
- Ethnic Quota not available to certain groups.
- True South Facing: Windows face South. No afternoon sun, ensuring a cool and bright home.
- Super Spacious: 1,216 sqft (113 sqm) 5A model. Rare corner unit with private corridor space.
- Bright & Breezy: Excellent cross-ventilation throughout the living and dining hall.
- Good Price: Genuine seller looking for a fair market deal. Best value 5-room in this cluster.
- Schools (1km - 2km): Elite options nearby including St. Hilda's Primary and Poi Ching School.
- Daily Amenities: 4 min walk to U Stars Supermarket, Kopitiam, and shops.
- Nature: 3 min walk to Tampines Green Forest Park & Rain Garden.
- Transport: Quick bus ride to Tampines West MRT (DTL) and easy access to PIE/TPE.
Genuine seller. Don't miss out on the best-priced 5-room in the area.
Contact Terence Tan at 9***** to view this week.
Common facilities
Car park
Affordability
Can I afford this property?
Tell us your monthly income and expenses to see if this home fits your budget.
Mortgage breakdown
Est. monthly repayment
S$ 0 / mo
S$ 0 Principal
S$ 0 Interest
Upfront costs
Total downpayment
S$ 0
Downpayment
S$ 0 Loan amount at 0% Loan-to-value
876C Tampines Avenue 8
FAQs
The sale price of this unit at 876C Tampines Avenue 8 is S$ 950,000.
Current PSF at 876C Tampines Avenue 8 is about S$ 781.25 psf.
The estimated loan repayment is S$ 2,833 / mo.
876C Tampines Avenue 8 is located at 876C Tampines Avenue 8 Pasir Ris / Tampines Changi / Pasir Ris (D17-18).
Floor size of this unit at 876C Tampines Avenue 8 is 1,216 sqft.
Explore other options in and around Pasir Ris / Tampines
Based on the property criteria, you might be interested on the following
HDB Flat For Sale
Show MoreNearest MRT Stations













