874B Tampines Street 85
874B Tampines Street 85
S$ 820,000
3
Beds
2
Baths
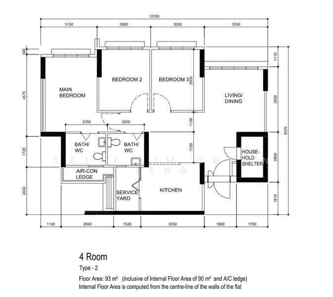
1,001
sqft
S$ 819
psf
About this property
874B, Tampines Street 85
Newly MOP! Spacious Corner Unit | 3 Bed 2 Bath | | Move-in cond.
Rare true corner unit offering privacy, space, and comfort
Perfect for families-
- 1001 sqft | Efficient, regular layout Spacious living areas
- North-South facing (no west sun ) Bright,Cozy and well-ventilated
- Quiet inner-facing unit (no road noise)
- Minimal built-ins – flexible for your own design
- Long lease remaining
Parking Convenience
- Sheltered multi-storey carpark ,Ev car charging station
- Direct link bridge to block – no need to worry about rain
Super Convenient Location
-Daily necessities are all in the surrounding area
- Sheng Siong just ~200m (3 mins walk)
- FairPrice @ Tampines Central CC nearby for more options
Great for Families
- Within 1km to St Hilda’s Primary
- Near Poi Ching Primary
- Close to Junyuan Secondary & Springfield Secondary
- UWC South East Asia (East Campus) approx. 0.7–1.1 km
Connectivity & Amenities
- 3–4 bus stops to Tampines MRT (Downtown & East-West Line)
- Easy access to Changi Airport, Marina Bay, Orchard & Bugis
- Near Tampines Hub, Tampines Mall, Century Square & Tampines One
- Close to Bedok Reservoir, SAFRA Tampines & HomeTeamNS
Additional Info
- 3 months extension required
Rare true corner unit offering privacy, space, and comfort
Perfect for families-
- 1001 sqft | Efficient, regular layout Spacious living areas
- North-South facing (no west sun ) Bright,Cozy and well-ventilated
- Quiet inner-facing unit (no road noise)
- Minimal built-ins – flexible for your own design
- Long lease remaining
Parking Convenience
- Sheltered multi-storey carpark ,Ev car charging station
- Direct link bridge to block – no need to worry about rain
Super Convenient Location
-Daily necessities are all in the surrounding area
- Sheng Siong just ~200m (3 mins walk)
- FairPrice @ Tampines Central CC nearby for more options
Great for Families
- Within 1km to St Hilda’s Primary
- Near Poi Ching Primary
- Close to Junyuan Secondary & Springfield Secondary
- UWC South East Asia (East Campus) approx. 0.7–1.1 km
Connectivity & Amenities
- 3–4 bus stops to Tampines MRT (Downtown & East-West Line)
- Easy access to Changi Airport, Marina Bay, Orchard & Bugis
- Near Tampines Hub, Tampines Mall, Century Square & Tampines One
- Close to Bedok Reservoir, SAFRA Tampines & HomeTeamNS
Additional Info
- 3 months extension required
Amenities
Air conditioner
Basic lights
Cabinets
Corner unit
Common facilities
Car park
Affordability
Can I afford this property?
Tell us your monthly income and expenses to see if this home fits your budget.
Mortgage breakdown
Est. monthly repayment
S$ 0 / mo
S$ 0 Principal
S$ 0 Interest
Upfront costs
Total downpayment
S$ 0
Downpayment
S$ 0 Loan amount at 0% Loan-to-value
874B Tampines Street 85

874B Tampines Street 85
View project detailsFAQs
The sale price of this unit at 874B Tampines Street 85 is S$ 820,000.
Current PSF at 874B Tampines Street 85 is about S$ 819.18 psf.
The estimated loan repayment is S$ 2,446 / mo.
874B Tampines Street 85 is located at 874B Tampines Street 85 Pasir Ris / Tampines Changi / Pasir Ris (D17-18).
Floor size of this unit at 874B Tampines Street 85 is 1,001 sqft.
Explore other options in and around Pasir Ris / Tampines
Based on the property criteria, you might be interested on the following
HDB Flat For Sale
Show MoreNearest MRT Stations

















