817B Keat Hong Link
817B Keat Hong Link
S$ 798,000
Negotiable3
Beds
2
Baths
1,206
sqft
S$ 662
psf
520 m (6 mins) from BP3 Keat Hong LRT
About this property
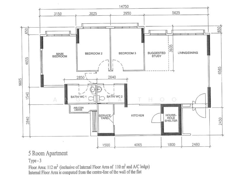
High Floor. Renovated 5rm for Sale. Potential 4th Bedroom
817B Keat Hong Link (Keat Hong Mirage)
- Rare 1,206 sqft spacious layout
- Wide living & dining space
- Suggested study area with potential 4th bedroom conversion
Spacious high-floor 5-room flat with a distinctive industrial concept renovation and efficient layout. The household shelter is tucked within the kitchen area, allowing the living and dining space to remain wide and unobstructed.
Ideal for families looking for a functional layout with room flexibility.
⸻
Unit Information
• 5-Room HDB Flat
• Approx. 1,206 sqft (112 sqm)
• High floor unit
• Bright and well ventilated
• Wide and efficient living & dining area
• Distinctive industrial concept renovation with exposed piping and brick feature wall
• Enclosed kitchen with ample cabinetry and countertop space
• Service yard for laundry and utility area
• Household shelter located within kitchen zone, maximising living space
• Suggested study area with potential to convert into 4th bedroom
• Squarish bedrooms for easy furniture planning
• Renovated bathrooms with glass shower screens
• Well maintained and move-in condition
⸻
Location & Amenities
• Walking distance to Keat Hong LRT (BP3)
• Short ride to Choa Chu Kang MRT (NSL) & Lot One Shopping Mall
• Express bus to CBD
Convenience right at your doorstep – amenities at Blk 818 (next block):
• U Supermarket
• NTUC FairPrice Express
• McDonald’s
• Coffeeshop & eateries
• Bakery
• Hair salon
• Medical clinic
• Dental clinic
• Laundromat
• Nearby neighbourhood shops and daily conveniences
• Easy access to Kranji Expressway (KJE)
• Parks and recreational spaces nearby
⸻
Schools Nearby
Within 1km
• Chua Chu Kang Primary School
• South View Primary School
• Teck Whye Primary School
Within 1–2km
• Concord Primary School
• Dazhong Primary School
• De La Salle School
• St Anthony’s Primary School
• West View Primary School
⸻
Contact Angella 9.6.9.8.5.9.3.8 for more details or to arrange a viewing. :)
- Rare 1,206 sqft spacious layout
- Wide living & dining space
- Suggested study area with potential 4th bedroom conversion
Spacious high-floor 5-room flat with a distinctive industrial concept renovation and efficient layout. The household shelter is tucked within the kitchen area, allowing the living and dining space to remain wide and unobstructed.
Ideal for families looking for a functional layout with room flexibility.
⸻
Unit Information
• 5-Room HDB Flat
• Approx. 1,206 sqft (112 sqm)
• High floor unit
• Bright and well ventilated
• Wide and efficient living & dining area
• Distinctive industrial concept renovation with exposed piping and brick feature wall
• Enclosed kitchen with ample cabinetry and countertop space
• Service yard for laundry and utility area
• Household shelter located within kitchen zone, maximising living space
• Suggested study area with potential to convert into 4th bedroom
• Squarish bedrooms for easy furniture planning
• Renovated bathrooms with glass shower screens
• Well maintained and move-in condition
⸻
Location & Amenities
• Walking distance to Keat Hong LRT (BP3)
• Short ride to Choa Chu Kang MRT (NSL) & Lot One Shopping Mall
• Express bus to CBD
Convenience right at your doorstep – amenities at Blk 818 (next block):
• U Supermarket
• NTUC FairPrice Express
• McDonald’s
• Coffeeshop & eateries
• Bakery
• Hair salon
• Medical clinic
• Dental clinic
• Laundromat
• Nearby neighbourhood shops and daily conveniences
• Easy access to Kranji Expressway (KJE)
• Parks and recreational spaces nearby
⸻
Schools Nearby
Within 1km
• Chua Chu Kang Primary School
• South View Primary School
• Teck Whye Primary School
Within 1–2km
• Concord Primary School
• Dazhong Primary School
• De La Salle School
• St Anthony’s Primary School
• West View Primary School
⸻
Contact Angella 9.6.9.8.5.9.3.8 for more details or to arrange a viewing. :)
Amenities
Air conditioner
Corner unit
Renovated
Storage
Affordability
Can I afford this property?
Tell us your monthly income and expenses to see if this home fits your budget.
Mortgage breakdown
Est. monthly repayment
S$ 0 / mo
S$ 0 Principal
S$ 0 Interest
Upfront costs
Total downpayment
S$ 0
Downpayment
S$ 0 Loan amount at 0% Loan-to-value
817B Keat Hong Link
FAQs
The sale price of this unit at 817B Keat Hong Link is S$ 798,000.
Current PSF at 817B Keat Hong Link is about S$ 661.69 psf.
The estimated loan repayment is S$ 2,380 / mo.
817B Keat Hong Link is located at 817B Keat Hong Link Dairy Farm / Bukit Panjang / Choa Chu Kang West (D22-24).
Floor size of this unit at 817B Keat Hong Link is 1,206 sqft.
Explore other options in and around Dairy Farm / Bukit Panjang / Choa Chu Kang
Based on the property criteria, you might be interested on the following
HDB Flat For Sale
Show MoreNearest MRT Stations















