467 Admiralty Drive
467 Admiralty Drive
S$ 638,000
Starting From3
Beds
2
Baths
1,238
sqft (floor)
S$ 515
psf (floor)
960 m (12 mins) from NS11 Sembawang MRT
About this property
HDB 5-rm flat resort style. Living near a river and a beautiful park
Come and feel yourself.
Living beside a river, with a greenery landscape, and a jogging Park Connector.
Don't miss! Come and see.
This cosy 5-room corner home at 467 Admiralty Drive
Looking for a home that feels peaceful, yet connected?
Call Alfred 9633-five five one five for a viewing appointment.
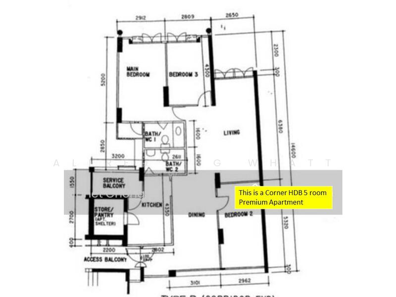
This rare corner high-floor 5-Room Premium Apartment (5PA) offers the best of both worlds — tranquil privacy with bright, airy comfort throughout the day.
Welcome to your dream home! This stunning 5-room HDB flat, at 467 Admiralty Drive, offers 1,238 sqft of well-designed living space, perfect for families seeking comfort and convenience.
Key Features:
• Corner unit with added privacy and surrounded by greenery – your peaceful retreat in the city
• Fully renovated with a modern kitchen, ample storage cabinets, and elegant tiled flooring
• Bright, airy interiors with air-conditioning throughout for year-round comfort
• Spacious layout ideal for family living
Prime Location:
• 1.4 km to Sembawang MRT – easy commute to anywhere in Singapore
• 0.8 km to Sembawang Secondary School and 1.5 km to Edumore Learning Centre – great for families with school-going children
• Close to daily conveniences:
• FairPrice Sembawang Way (1.1 km)
• Giant Express (1.2 km)
• Sembawang Mart (1.5 km) – enjoy shopping, dining, and community activities
Don’t miss the chance to own this remarkable home that blends style, comfort, and superb location.
Living beside a river, with a greenery landscape, and a jogging Park Connector.
Don't miss! Come and see.
This cosy 5-room corner home at 467 Admiralty Drive
Looking for a home that feels peaceful, yet connected?
Call Alfred 9633-five five one five for a viewing appointment.
This rare corner high-floor 5-Room Premium Apartment (5PA) offers the best of both worlds — tranquil privacy with bright, airy comfort throughout the day.
Welcome to your dream home! This stunning 5-room HDB flat, at 467 Admiralty Drive, offers 1,238 sqft of well-designed living space, perfect for families seeking comfort and convenience.
Key Features:
• Corner unit with added privacy and surrounded by greenery – your peaceful retreat in the city
• Fully renovated with a modern kitchen, ample storage cabinets, and elegant tiled flooring
• Bright, airy interiors with air-conditioning throughout for year-round comfort
• Spacious layout ideal for family living
Prime Location:
• 1.4 km to Sembawang MRT – easy commute to anywhere in Singapore
• 0.8 km to Sembawang Secondary School and 1.5 km to Edumore Learning Centre – great for families with school-going children
• Close to daily conveniences:
• FairPrice Sembawang Way (1.1 km)
• Giant Express (1.2 km)
• Sembawang Mart (1.5 km) – enjoy shopping, dining, and community activities
Don’t miss the chance to own this remarkable home that blends style, comfort, and superb location.
Amenities
Air conditioner
Cabinets
Dining table
Affordability
Can I afford this property?
Tell us your monthly income and expenses to see if this home fits your budget.
Mortgage breakdown
Est. monthly repayment
S$ 0 / mo
S$ 0 Principal
S$ 0 Interest
Upfront costs
Total downpayment
S$ 0
Downpayment
S$ 0 Loan amount at 0% Loan-to-value
467 Admiralty Drive

467 Admiralty Drive
View project detailsFAQs
The sale price of this unit at 467 Admiralty Drive is S$ 638,000.
Current PSF at 467 Admiralty Drive is about S$ 515.35 psf.
The estimated loan repayment is S$ 1,978 / mo.
467 Admiralty Drive is located at 467 Admiralty Drive Sembawang / Yishun North (D25-28).
Floor size of this unit at 467 Admiralty Drive is 1,238 sqft.
Explore other options in and around Sembawang / Yishun
Based on the property criteria, you might be interested on the following
HDB Flat For Sale
Show MoreNearest MRT Stations


















