111B Alkaff Crescent
111B Alkaff Crescent
S$ 1,350,000
3
Beds
2
Baths
1,001
sqft
S$ 1,349
psf
780 m (9 mins) from NE11 Woodleigh MRT
About this property
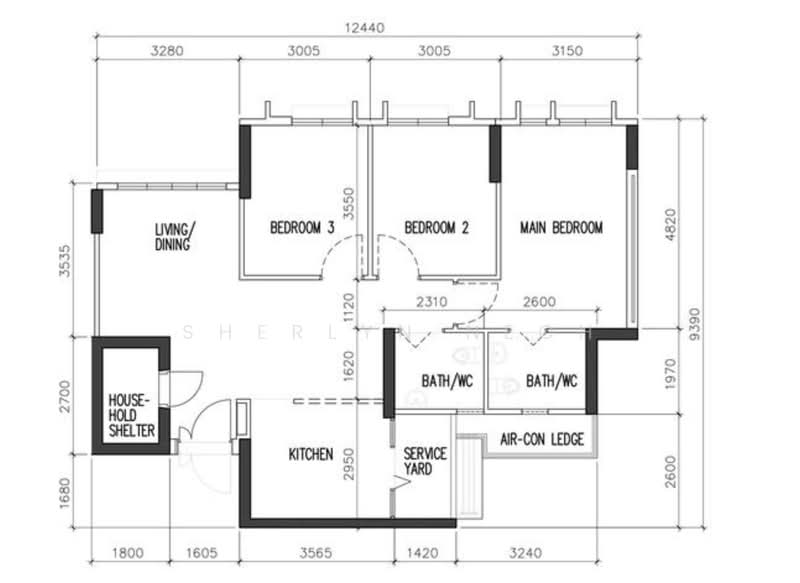
New Exclusive High-Floor Bidadari Designer Home, Well Renovated
Welcome to your next chapter in the heart of Bidadari. This isn't just a standard 4-room flat; it is a thoughtfully reconfigured designer home situated on a high floor, offering the perfect balance of privacy, connectivity, and educational advantage.
The Transformation:
Skip the 6-month renovation wait. This unit features a bespoke layout, including a study with a transparent glass entrance—perfect for keeping an eye on the kids while you work—and a master bedroom with a flushed wardrobe to maximize floor space.
The Chef’s Space:
Unlike many modern open concepts, this home features a functional enclosed kitchen with a half-transparent glass panel, keeping the fumes out while maintaining a bright, open feel.
The Education Advantage:
Perfectly positioned for the little ones. You are within the coveted 1km radius to three top primary schools (Maris Stella, Cedar, or St. Andrew), ensuring a shorter commute and a competitive edge for admissions.
Connectivity at Your Doorstep:
MRT & Mall: Just a short stroll to the MRT and the Woodleigh Mall for all your dining, grocery, and retail needs.
The Stack:
High-floor premium stack positioned for maximum airflow and privacy, looking through a strategic gap between blocks.
The Vibe:
Bright, breezy, and move-in ready.
Contact Sherlyn 9***** for an exclusive viewing today!
The Transformation:
Skip the 6-month renovation wait. This unit features a bespoke layout, including a study with a transparent glass entrance—perfect for keeping an eye on the kids while you work—and a master bedroom with a flushed wardrobe to maximize floor space.
The Chef’s Space:
Unlike many modern open concepts, this home features a functional enclosed kitchen with a half-transparent glass panel, keeping the fumes out while maintaining a bright, open feel.
The Education Advantage:
Perfectly positioned for the little ones. You are within the coveted 1km radius to three top primary schools (Maris Stella, Cedar, or St. Andrew), ensuring a shorter commute and a competitive edge for admissions.
Connectivity at Your Doorstep:
MRT & Mall: Just a short stroll to the MRT and the Woodleigh Mall for all your dining, grocery, and retail needs.
The Stack:
High-floor premium stack positioned for maximum airflow and privacy, looking through a strategic gap between blocks.
The Vibe:
Bright, breezy, and move-in ready.
Contact Sherlyn 9***** for an exclusive viewing today!
Amenities
Air conditioner
Bedroom cabinets
Covered car parking
Modern kitchen furnishing
Common facilities
Car park
Affordability
Can I afford this property?
Tell us your monthly income and expenses to see if this home fits your budget.
Mortgage breakdown
Est. monthly repayment
S$ 0 / mo
S$ 0 Principal
S$ 0 Interest
Upfront costs
Total downpayment
S$ 0
Downpayment
S$ 0 Loan amount at 0% Loan-to-value
111B Alkaff Crescent
FAQs
The sale price of this unit at 111B Alkaff Crescent is S$ 1,350,000.
Current PSF at 111B Alkaff Crescent is about S$ 1,348.65 psf.
The estimated loan repayment is S$ 3,958 / mo.
111B Alkaff Crescent is located at 111B Alkaff Crescent Balestier / Toa Payoh Balestier / Geylang (D12-14).
Floor size of this unit at 111B Alkaff Crescent is 1,001 sqft.
Explore other options in and around Balestier / Toa Payoh
Based on the property criteria, you might be interested on the following
HDB Flat For Sale
Show MoreNearest MRT Stations











