154 Ang Mo Kio Avenue 5
154 Ang Mo Kio Avenue 5
S$ 1,200 /mo
NegotiableRoom
120
sqft (floor)
730 m (9 mins) from TE6 Mayflower MRT
1.1 km (13 mins) from NS15 Yio Chu Kang MRT
Available from 17 May 2026
About this property
Fully furnished common room for rent, surrounded by amenities!
Very conveniently located in Ang Mo Kio near Mayflower MRT, with food centre, market and shops nearby. Unblocked view facing greenery, quiet, peaceful environment near park yet surrounded by amenities for daily need.
THE ROOM:
- available from 17 May 2026
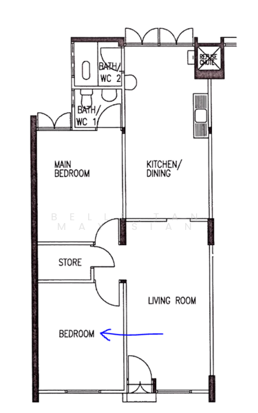
- renovated common room in 3-room flat
- common bathroom (not attached) for personal use (no need to share)
- fully furnished as per photos, just bring luggage!
- utilities and WiFi included
- cooking not allowed, heating up of food is fine
- for single occupancy
- min 1 year lease
Landlord (husband and wife) staying in the unit, very friendly and approachable!
Contact Belle 9225.4999 for viewing
THE ROOM:
- available from 17 May 2026
- renovated common room in 3-room flat
- common bathroom (not attached) for personal use (no need to share)
- fully furnished as per photos, just bring luggage!
- utilities and WiFi included
- cooking not allowed, heating up of food is fine
- for single occupancy
- min 1 year lease
Landlord (husband and wife) staying in the unit, very friendly and approachable!
Contact Belle 9225.4999 for viewing
Amenities
Air-conditioning
Bed
Fridge
Internet connection
154 Ang Mo Kio Avenue 5
154 Ang Mo Kio Avenue 5
View project detailsFAQs
There are 1 bedroom(s) with 1 bathroom(s) in this unit.
The rent of this unit at 154 Ang Mo Kio Avenue 5 is about S$ 1,200 /mo.
The current rental PSF at 154 Ang Mo Kio Avenue 5 is about S$ 10.00 psf.
154 Ang Mo Kio Avenue 5 is located at 154 Ang Mo Kio Avenue 5 Ang Mo Kio / Bishan / Thomson Serangoon / Thomson (D19-20).
Floor size of this unit at 154 Ang Mo Kio Avenue 5 is 120 sqft.
Explore other options in and around Ang Mo Kio / Bishan / Thomson
Based on the property criteria, you might be interested on the following
HDB Flat For Rent
Nearest MRT Stations








