Thomson Three
41 Bright Hill Drive
S$ 2,680,000
3
Beds
3
Baths
1,141
sqft
S$ 2,348.82
psf
420 m (5 mins) from TE8 Upper Thomson MRT
560 m (7 mins) from TE7/CR13 Bright Hill MRT
About this property
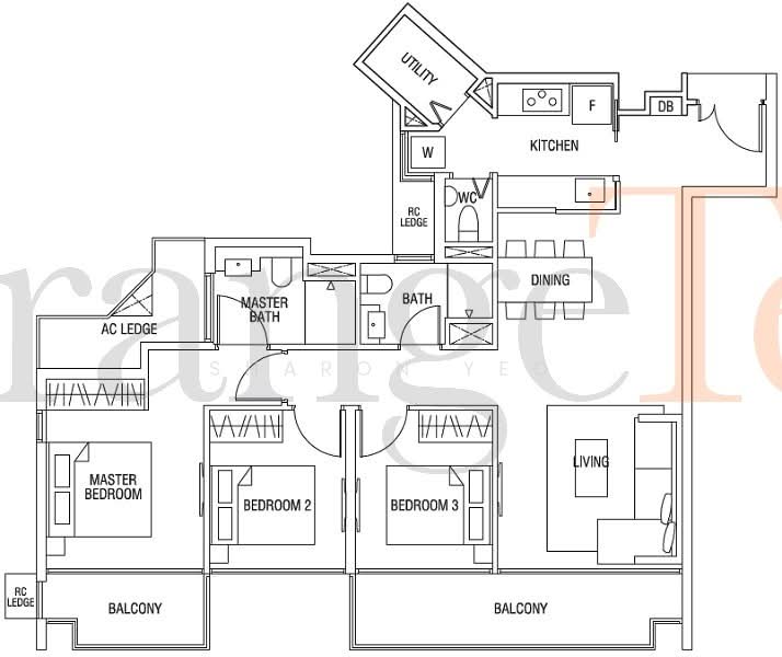
Modern renovated 3 bedroom with helpers room. Face pool. No noon sun
3+1 bedroom, 3 bathroom condo
1,141 sqft, excellent layout ! With helper’s room and helper’s toilet.
Balcony South-facing with greenery view
Full privacy, bright and breezy
Excellent condition, move-in ready
Air-conditioning & balcony
Location & Convenience
Near Upper Thomson & Bright Hill MRT
Close to Thomson Plaza & Sin Ming Plaza
Nearby supermarkets (Sheng Siong, FairPrice)
Schools Nearby
Ai Tong School (within 1 km)
Catholic High School
CHIJ St Nicholas Girls’ School
Eunoia Junior College
Amenities
Air conditioner
Balcony
Barbeque pits
Covered car parking
Common facilities
24 hours security
Car park
Affordability
Tell us your monthly income and expenses to see if this home fits your budget.
Thomson Three

Thomson Three is a 99-year leasehold condominium development located at 18 Bright Hill Drive, Singapore 573883, in the sought-after District 20 encompassing Ang Mo Kio, Bishan, and Thomson. Developed by United Venture Development (Thomson) Pte Ltd, a joint venture between UOL Group and SingLand, the condominium was completed in 2017. It consists of 435 condo units and 10 strata units The project offers a variety of accommodation options, including one - to four-bedroom apartments, penthouses, and ten exclusive strata semi-detached houses, catering to diverse residential preferences. The 21-storey towers are thoughtfully designed to harmonise with the surrounding greenery, providing residents with a peaceful living environment while remaining well connected to Singapore’s urban amenities. Thomson Three distinguishes itself through its harmonious blend of serene living and urban accessibility. Located along Bright Hill Drive, the development offers residents a peaceful retreat surrounded by greenery. The condominium is also highly accessible, with major MRT stations nearby. This connectivity ensures residents can travel efficiently to key areas. Beyond transport links, Thomson Three is situated close to Thomson Plaza, local shops, supermarkets, and a variety of eateries along Upper Thomson Road, providing convenience for daily needs and dining. Families will also find the location appealing due to its proximity to several choice schools within a few-kilometer radius. These features create a well-rounded residential experience, offering a lifestyle that balances tranquillity, practicality, and community. Thomson Three is situated in a location that balances tranquility with convenience. It is a five-minute walk from Upper Thomson MRT Station (TE8) on the Thomson-East Coast Line, providing residents with direct access to major areas in Singapore. Additionally, Bright Hill MRT Station (CR13) is within walking distance, providing residents with access to the upcoming Cross Island Line. The development is easily accessible via Upper Thomson Road, allowing smooth travel to the Central Business District and Orchard Road. This combination of public transport and road connectivity makes Thomson Three suitable for both commuters and those who prefer a private vehicle. The neighbourhood surrounding Thomson Three is vibrant yet serene. Thomson Plaza provides a convenient retail and dining experience. Residents can also enjoy outdoor activities and relaxation, with nearby green spaces like Bishan-Ang Mo Kio Park and MacRitchie Reservoir just a short distance away. Situated at 18 Bright Hill Drive, Thomson Three occupies a prime location that blends urban design with natural serenity. Project Name: Thomson Three Type: Condominium District: 20 Tenure: 99-year Leasehold of Blocks: 13 of Floors: 21 Configuration: 435 condo units + 10 strata units Thomson Three offers a comprehensive range of facilities designed to cater to residents’ recreational, social, and wellness needs, creating a well-rounded living experience. The development includes essential and lifestyle-enhancing amenities such as: BBQ Fountain Gym Hydrotherapy Pool Karaoke Lap Pool Multi-Purpose Hall Outdoor Dining Playground Pool Deck Reflective Pool Security Steam Room Water Feature Management is handled by MCST 4497, ensuring regular maintenance and efficient service delivery. The integration of development into its green surroundings creates a tranquil environment, fostering a peaceful residential experience. Families residing at Thomson Three benefit from the proximity to several choice educational institutions. Schools near the development include: Ai Tong School Catholic High School Raffles Institution This accessibility to educational institutions makes Thomson Three an attractive choice for households prioritising their children's schooling. The Upper Thomson area is renowned for its variety of dining options. Within a short distance of Thomson Three, residents can enjoy: Burp Kitchen & Bar The Grumpy Bear ASTONS Specialities These establishments offer a range of casual and moderately priced meals. Healthcare access is convenient for residents of Thomson Three. Chong’s Clinic Thomson Medical Centre Sin Min Clinic The neighbourhood is well-served by general clinics and medical centres, ensuring residents can receive medical attention with ease when required. For everyday needs, residents have access to supermarkets within proximity. Nearby supermarkets include: NTUC FairPrice Giant Supermarket Sheng Siong Supermarket This convenience ensures that grocery shopping and daily essentials are easily obtainable without the need for long travel. The development’s 21-storey towers are designed to harmoniously integrate with the green surroundings, providing a sense of space and calm. While detailed landscaping and communal area plans are not provided, the overall design focuses on creating an inviting and peaceful living environment. Unit Types: One‑bedroom : 495 – 538 sq ft Two‑bedroom : 710 – 1,141 sq ft Three‑bedroom : 1,033 – 1,582 sq ft Four‑bedroom : 1,485 – 1,862 sq ft Four‑bedroom terraced house : 3,283 sq ft The design maximises space utilisation and natural light, offering residents comfortable living spaces suited to households of different sizes and preferences. Thomson Three is developed by United Venture Development (Thomson) Pte Ltd, a joint venture between UOL Group and SingLand. This collaboration brings together the expertise of both developers, ensuring that the project meets high standards in construction quality and design. For buyers or investors interested in other projects by the same developer, related developments include: The Tre Ver (United Venture Development Ltd) Amber45 (UOL Group) The Clement Canopy ( UOL Group and SingLand) These developments share similarities in design quality and location advantages, making them worth considering for potential homeowners. Thomson Three is also surrounded by several notable residential projects in the neighbourhood, contributing to a vibrant community atmosphere: Thomson Grand Sky Habitat Thomson View Condominium These nearby developments enhance the area’s appeal and provide residents with additional housing options. Thomson Three offers a balanced combination of convenience, comfort, and lifestyle within Singapore’s District 20. With modern living spaces, essential facilities, excellent connectivity, and proximity to recreational areas, the development is suitable for families, professionals, and investors seeking a residential property that integrates urban accessibility with tranquillity. The combination of location, design, and community amenities makes Thomson Three a distinctive residence for individuals and families seeking a balanced and modern urban lifestyle in Singapore. Browse available units for sale and rent at Thomson Three and experience balanced urban living.
View project details





















