The Tapestry
53 Tampines Street 86
S$ 1,728,000
Negotiable3
Beds
2
Baths
990
sqft
S$ 1,745
psf
About this property
Cheap! 1km to Poi Ching and St. Hildas Pri. Move-in condition!
- CHEAP - CHEAP - CHEAP -
Unit Attributes:
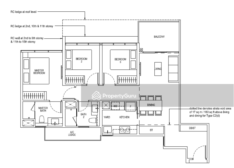
- 3Bed 2Bath
- Enclosed Kitchen
- Corner Unit
- Zero built in
- Proximity to Tampines MRT station (EW line) and Tampines West MRT station (DTL)
- Easily accessible via expressways, Pan Island Expressway (PIE), Tampines Expressway (TPE)
Project Details:
- TOP in 2021
- Full facilities: Swimming Pool, Gym, Pavilions, BBQ Pits, Tennis courts, Function Rooms etc.
Two Top Primary Schools within 1km:
- St Hilda's Primary School
- Poi Ching Primary School
Nearby Groceries:
- Multiple Supermarket nearby
- Wet market at Tampines West
Don't miss out on the opportunity to own this luxurious spacious and well-located property. Motivated and serious seller!
Contact 9.2.2.3.8.8.9.2 for an exclusive viewing today!
Amenities
Basic lights
Cabinets
Fans
Common facilities
24 hours security
Adult fitness stations
Community garden
Covered linkways
Affordability
Tell us your monthly income and expenses to see if this home fits your budget.
The Tapestry

The Tapestry is an exclusive 99-years leasehold condominium located at Tampines Street 86, Singapore 528509, in the highly desirable District 18 of Singapore. Completed in 2021 and developed by City Developments Limited (CDL), this condominium comprises 861 residential units offering a diverse selection of one-bedroom to five-bedroom apartments. The development consists of seven towers, each rising 15 floors, thoughtfully designed to maximise space, natural light, and views of the surrounding greenery. With layouts suitable for singles, couples, and larger families, The Tapestry offers versatile and comfortable living spaces. The development also offers a comprehensive range of communal facilities, designed to enhance daily living and foster a sense of community. Residents can enjoy spaces for relaxation, recreation, and social interaction, making The Tapestry a balanced and convenient place to live for all household types. Located in District 18, The Tapestry enjoys excellent connectivity to Singapore’s key locations, including the Central Business District (CBD). Residents benefit from easy access to public transport as well as major roads, making commuting straightforward and convenient. The development’s facilities are designed to elevate daily living, including an infinity lap pool, a lap pool, a hydrotherapy pool, and an eco-pond. Every apartment is equipped with smart home devices, allowing residents to control appliances remotely, enhancing the convenience of modern living. With its blend of comfort, convenience, and eco-friendly features, The Tapestry provides a balanced urban lifestyle without compromising on quality, style, design, comfort, or functionality. The Tapestry is well-positioned for effortless access to both public transport and major expressways. The nearest station is Tampines West MRT Station (DT31). Multiple bus stops along Tampines Avenue 10 provide further connectivity, linking residents to various parts of the island. The Tapestry is connected to the Tampines Expressway (TPE), Pan Island Expressway (PIE), and Kallang-Paya Lebar Expressway (KPE), making travel to Orchard Road, the Central Business District (CBD), and other key destinations convenient. The surrounding neighbourhood is vibrant and family-friendly, with nearby attractions such as Tampines Eco Green, Bedok Reservoir Park, and Tampines Hub, offering a wide range of recreational and lifestyle options. Residents also enjoy close proximity to a variety of everyday amenities, including shopping centres, supermarkets, and dining options, ensuring daily needs are met with ease. This combination of convenience, connectivity, and recreational opportunities makes living at The Tapestry both practical and enjoyable. Rising to around 15 storeys, the development combines modern architecture with natural features, creating a harmonious living environment. The design blends comfort, style, and functional living spaces. The Tapestry Condominium 18 99-year Leasehold Seven 15 861 residential units The Tapestry is designed to provide a holistic living experience, offering a wide range of facilities to cater to residents’ leisure, fitness, and social needs. Key facilities include: Lounge Hydrotherapy Pool Pool Deck Tennis Court Playground Reflective Pool Wading Pool Jet Pool Fitness Corner Outdoor Dining Lap Pool Sculpture Pond Infinity Pool Gym Jogging Track BBQ Steam Room Viewing Deck Hammocks Security These thoughtfully curated facilities allow residents to relax, exercise, and socialise, fostering a sense of community while providing a serene living environment amidst modern comforts. Families will find several choice educational options within easy reach of The Tapestry, including: Hilda’s Primary School Hilda’s Secondary School Temasek Polytechnic These institutions offer convenient access to education for residents with children of all ages. The neighbourhood surrounding The Tapestry offers a wide variety of dining options, catering to both local and international tastes. Some popular choices include: Soi Thai Kitchen Little Tokio Kraft x Mexicana Residents can enjoy both casual dining and fine dining options without travelling far from home. Healthcare options near The Tapestry include: Tampines Polyclinic HMI OneCare Clinic Tampines Peace Family TCM Clinic These facilities ensure residents have ready access to medical care when needed. Everyday convenience is covered with nearby supermarkets such as: Natural Supermarket Indian Supermarket Pte Ltd Prime Supermarket Residents can easily manage their daily shopping needs without travelling far. The Tapestry occupies a prime site at Tampines Street 86, covering approximately 233,769 sq ft. One-Bedroom: 441-474 sq ft One-Bedroom Sky Room: 603 sq ft Two-Bedroom: 603–743 sq ft Two-Bedroom Premium: 700–818 sq ft Two-Bedroom Sky Room: 743–807 sq ft Three-Bedroom: 926–1,130 sq ft Four-Bedroom: 1,432–1,485 sq ft Five-Plus-One-Bedroom: 1,765 sq ft With its thoughtful design, diverse unit types, and comprehensive facilities, The Tapestry offers a modern, comfortable, and convenient lifestyle for residents in the heart of Tampines. City Developments Limited (CDL), a leading name in Singapore’s property market, developed The Tapestry. CDL is known for its focus on sustainable living and high-quality design, with multiple awards recognising architectural excellence. This development reflects CDL’s commitment to creating vibrant, modern communities that integrate amenities and eco-friendly features. Other projects by CDL include: Amber Park Boulevard 88 Irwell Hill Residences These projects showcase CDL’s range of residential offerings across Singapore. The surrounding neighbourhood is home to several prominent developments, creating a vibrant community atmosphere. Nearby projects include: The Alps Residences The Santorini Treasure at Tampines Residents benefit from a blend of amenities, connectivity, and community life offered by these nearby developments. The Tapestry presents an appealing opportunity for urban living in one of Singapore’s most sought-after districts. With its modern facilities, smart home features, and strong connectivity, this condominium offers a balanced, comfortable lifestyle for both individuals and families. With diverse unit types and practical layouts, the development benefits from nearby schools and everyday amenities, ensuring convenience and quality of life. Looking to buy or rent in District 23? Explore units for sale and rent at Sol Acres and find a unit that fits your lifestyle and needs.
View project details


































