The Rochester Residences
33 Rochester Drive
S$ 1,389,000
Negotiable1
Bed
1
Bath
872
sqft (floor)
S$ 1,593
psf (floor)
510 m (6 mins) from EW21/CC22 Buona Vista MRT
About this property
Cheap value for 1-bedder with high ceiling with no loft.
CHEAP CHEAP 1-BEDDER WITH SPACIOUS MASTER-BEDROOM
=================================
*A rare opportunity—well-maintained unit with an excellent tenant.*
*Option to sell with vacant possession.*
*Priced attractively below valuation.*
*Perfect as investment or for own stay.*
Conveniently located in RCR & well connected to the Buona Vista MRT/Mall & Star Vista.
This is an integrated condominium which is just so easily within reach to what one needs.
A single lady tenant who is a prompt paymaster.
The unit is very pleasant & well done up. The room is very spacious & easily can fit in 2 king sized bedframes. Unblocked view with pocket pool view.
**#**
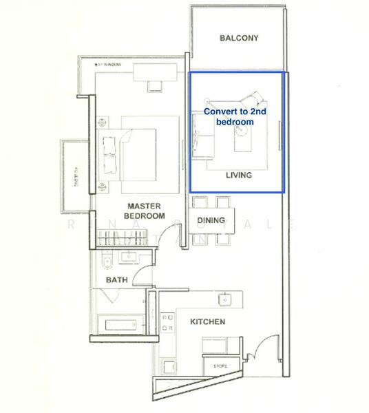
Exciting potential of creating an EXTRA spacious bedroom, bright & airy with own privacy balcony! See the sketched floor plan to have a clarity!
If you intend to buy for own stay, there is a breaklease clause in the Tenancy Agreement.
Give me a call at 9***** Rina Royale Tan/Propnex Realty Pte Ltd.
Amenities
Air-conditioning
Balcony
Bed
Cooker hob/hood
Common facilities
24 hours security
Barbeque pits
Fun pool
Pavillion
Affordability
Tell us your monthly income and expenses to see if this home fits your budget.
The Rochester Residences

The Rochester is a leasehold apartment building that is located at Rochester Drive in District 5. It is a new apartment development. The project was completed in the year 2011 with a total of 334 units available for sale or rent. The apartment is located close to public transportation that allows residents to move easily from one place to another from the apartment. There are many shops and amenities close to the apartment which would ease the process for residents, and they do not need to go far to find what they need. The project is developed by UE One-North Developments Pte Ltd; a small-scale property developer listed on Singapore Exchange and has developed another 3 other property projects in Singapore. - The Rochester is a beautiful apartment that has many charms to it. There are various facilities that residents can enjoy while living in The Rochester. Residents of The Rochester would not have to travel far to get their basic necessities as everything is close by. Residents can enjoy the barbeque area, pavilion, playground, spa pool, fun pool, pool deck and swimming pool. The apartment comes equipped with 24 hours security system that ensures the safety of residents at all times. There is a number of public transportation close to The Rochester that residents can make use of. The closest MRT to the apartment is Buona Vista MRT station and One-North MRT station. The closest bus stops are located at Buona Vista Station, Essec Business School, Buona Vista Terminal and Ghim Moh Terminal. For those with vehicles, the shopping district located at Orchard Road can be easily accessed via Holland Road or Ayer Rajah Expressway in about 15 to 20 minutes. Cali, Park Avenue Rochester HotelNene ChickenCanton Paradise at The Start VistaLong John Silver’s Star VistaA-One Claypot House Fairfield Methodist School (Primary)Fairlfield Methodist Secondary SchoolIdeas Ink SchoolTanglin Trust SchoolAPS Swim School Singapore Pte Ltd Smile Street Dental ClinicThe Chelsea ClinicB9 Dental CentreRefresh Laser ClinicComplete Healthcare International Rochester MallThe Star VistaMetropolis ParkHolland Piazza Cold Storage Star VistaSol MartSheng ShiongGiant ExpressFairPrice Holland Drive The Rochester is an apartment development that is made up of a total of 334 units that rise up to 37-storeys high. There are 3 unit types available with various layouts that residents can browse through. The sizes for the units range between 840 square feet to 1,948 square feet. The layouts for the units in The Rochester aim to provide residents with homes that is comfortable for working adults, couples or families looking to own a spacious and manageable apartment unit. The sale price for the units ranges between S$ 1,280,000 to S$ 7,080,000. The rental price for the units ranges between S$ 3,400 to S$ 7,000. Project Name: The RochesterType: ApartmentDistrict: 05Configuration: 334 residential unitsUnit Types:1 bedroom (840 sqft 1,023 sqft)2 bedrooms (1,206 sqft 1,356 sqft)3 bedrooms (1,679 sqft 1,948 sqft) The following are projects that have been developed Qingjian Realty (Marymount) Pte Ltd, the developer of The Rochester: Austville ResidencesEight RiversuitesUE Square The following developments are in the same neighborhood as The Rochester:Parc ClematisParc RivieraKent Ridge Hill ResidencesWhistler GrandThe RochesterOne-North Residences
View project details










