The Continuum
1-8 Thiam Siew Avenue
S$ 2,959,000
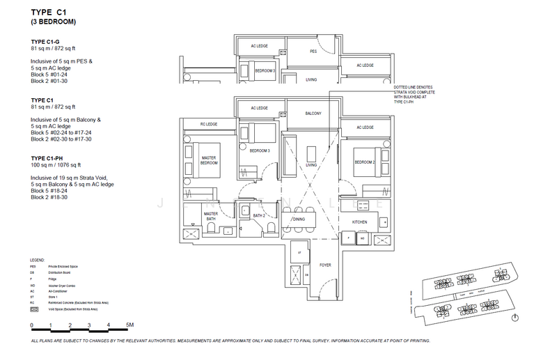
3
Beds
2
Baths
1,076
sqft
S$ 2,750
psf
830 m (10 mins) from CC8 Dakota MRT
950 m (11 mins) from EW8/CC9 Paya Lebar MRT
About this property
Direct Developer Pricing: 3BR The Continuum D15 Mega Freehold
Experience luxurious family living in this spacious 3-Bedroom residence at The Continuum. Jointly developed by Hoi Hup Realty and Sunway Developments, this freehold masterpiece sits on a massive 269,995 sqft site. Designed with flexibility in mind, your home provides the perfect sanctuary while keeping you within walking distance to Paya Lebar Quarters, major eateries, and East Coast Park.
◤ Schools Within 1km ◥
☆ KONG HWA SCHOOL
☆ TANJONG KATONG PRIMARY SCHOOL
☆ HAIG GIRLS' SCHOOL
◤ Schools Nearby ◥
☆ TANJONG KATONG SECONDARY SCHOOL
☆ TANJONG KATONG GIRLS' SCHOOL
☆ CHUNG CHENG HIGH SCHOOL (MAIN)
Whether you are an individual, a couple, or a large family, find your perfect home at The Continuum—a sanctuary that celebrates the best of Singapore's eastern charm.
Exclusively Brought To You By:
Jensen Lee
87233111
ERA Division Director
PREEMINENT GROUP
Amenities
Air conditioner
Common facilities
24 hours security
Adult fitness stations
Barbeque pits
Basement car park
Affordability
Tell us your monthly income and expenses to see if this home fits your budget.
The Continuum

The Continuum stands as a rare freehold condominium at No. 1 to 8, Thiam Siew Avenue, Singapore 436838, within the East Coast / Marine Parade (District 15). Developed jointly by Hoi Hup Realty and Sunway Developments, this condominium blends timeless architecture with modern comfort, appealing to homeowners and investors who value enduring quality and strong potential. Set on a generous land area of about 269,995 sq ft (25,083 sqm), The Continuum comprises 816 residential units housed across six refined blocks reaching up to 17 and 18 storeys. With completion scheduled for 2027, The Continuum exemplifies the essence of freehold living in one of Singapore's most desirable city-fringe neighbourhoods. District 15 has long been known for its charm, coastal proximity, and convenient access to the city. The Continuum captures these qualities while offering a new dimension of luxury and practicality. Homes are designed for diverse lifestyles, from one-bedroom units for individuals or investors to spacious five-bedroom options for families. Each unit maximises light, ventilation, and privacy with efficient use of space. Each home comes equipped with smart home systems that allow remote control of lighting, air conditioning, and appliances. Sustainability runs through the entire development, featuring energy-efficient fixtures, landscaped gardens, and elevated green zones that support wellness and reduce heat gain. The Continuum offers connectivity across Singapore through several nearby MRT stations, including: Paya Lebar MRT station (CC9, EW8) Dakota MRT station (CC8) Mountbatten MRT station (CC7) These stations link directly to the Circle Line and East–West Line, connecting residents seamlessly to major destinations. For those who drive, easy routes via the Kallang–Paya Lebar Expressway (KPE), Pan Island Expressway (PIE), and Nicoll Highway lead quickly to the Central Business District and Changi Airport. Within minutes, residents can enjoy East Coast Park's cycling paths, jogging routes, and seaside dining options. Shopping and entertainment are equally convenient, with Paya Lebar Quarter (PLQ Mall), Kinex, and Parkway Parade offering a full range of retail, dining, and leisure experiences. The Continuum's design emphasises wellness, recreation, and community living. Its extensive facilities span both the North and South zones, connected by a pedestrian overhead bridge that links the entire development seamlessly. 50-metre lap pool and leisure pool Two clubhouses, including the conserved heritage bungalow Two fitness centres and a yoga deck BBQ pavilions and outdoor dining pods Multipurpose recreation courts Children's pool, play areas, and family lawn Aqua gym, sound room, and function rooms Sky gardens and rooftop decks for relaxation Basement car park with direct lift access 24-hour security and concierge-style management Each feature supports a balanced lifestyle, combining active pursuits with spaces for quiet reflection. The result is a residential retreat that blends calm and convenience within the city's rhythm. Families at The Continuum have access to choice schools located within proximity. Educational options nearby include: Kong Hwa School Haig Girls' School Tanjong Katong Primary School This proximity to institutions enhances The Continuum's appeal for families seeking long-term stability and a convenient educational environment. The East Coast and Katong districts are celebrated for their vibrant dining and café culture, offering endless options for residents of The Continuum. Nearby favourites include: Hawkerman Street Kitchen @Haig Road Aunty Lily Kitchen @ City Plaza Tanglin Cookhouse (Paya Lebar Quarter) Retail and leisure destinations such as Parkway Parade, PLQ Mall, and Katong V are within a short distance. The location benefits from proximity to a range of healthcare options, including: Parkway East Hospital Parkway East Urgent Care Centre Trinity Medical Centre (Marine Parade) Neighbourhood clinics and dental centres throughout Joo Chiat, Tanjong Katong, and Marine Parade provide accessible everyday healthcare for families and individuals. Supermarkets and fresh markets surrounding The Continuum offer easy access to daily necessities. Options include: Sheng Siong Hypermarket (Tanjong Katong) FairPrice Joo Chiat Complex Hojiak supper market For fresh produce and local ingredients, Geylang Serai Market and Marine Terrace Market remain favourites among East Coast residents. Set across two interconnected plots, The Continuum’s site plan presents a harmonious blend of modern design and natural landscaping. Its six towers are positioned for privacy, airflow, and natural light throughout the day. The Continuum Freehold Condominium 15 (East Coast / Marine Parade) The Continuum features six towers, four at 17 storeys and two at 18 storeys, offering 816 homes, including one- to five-bedroom units. Approx. 269,995 sq ft (25,083 sqm) One-bedroom (from 560 sq ft) Two-bedroom (from 646 to 807 sq ft) Three-bedroom (from 947 to 1,238 sq ft) Four-bedroom (from 1,130 to 1,690 sq ft) Five-bedroom (from 1,905 to 2,260 sq ft) A pedestrian overhead bridge links the north and south sides, providing smooth access between facilities. The restored heritage bungalow serves as a social and lifestyle hub, while rooftop gardens and green corridors create calming communal areas. The Continuum is developed by Hoi Hup Realty and Sunway Developments, both recognised for their excellence and reliability in real estate. Hoi Hup Realty, based in Singapore, has built a reputation through developments such as Sophia Hills and The Miltonia Residences. Sunway Developments, part of Malaysia's Sunway Group, brings decades of experience in sustainable townships and integrated communities. Here are some notable projects by the same developers: KI Residences At Brookvale: Hoi Hup Realty and Sunway Developments Otto Place: Hoi Hup Realty & Sunway Developments Parc Canberra: Hoi Hup Realty Pte Ltd These developments reflect their shared commitment to quality design and enduring value. The Continuum sits among a vibrant community of established homes in the East Coast area. Nearby projects include: Amber Park Marine Blue Meyer Mansion These neighbouring developments highlight the continued desirability and long-term value of District 15, a neighbourhood that combines convenience, character, and coastal appeal. The Continuum captures everything people value about East Coast living, with its freehold status, great connectivity, and thoughtful design. Every aspect of the development reflects a balance of comfort and investment value, making it a preferred choice for both families and investors. Discover The Continuum sales listings on PropertyGuru and take the next step toward your dream home or investment today!
View project details


















