The Coast at Sentosa Cove
280 Ocean Drive
S$ 4,350,000
4
Beds
5
Baths
2,928
sqft
S$ 1,485.66
psf
About this property
Lower psf, tastefully renovated, huge patio and vacant possession.
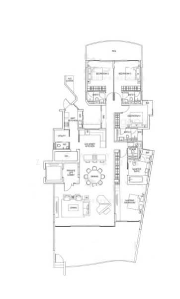
All bedrooms come with ensuite bathrooms, offering maximum privacy and comfort. The layout is thoughtfully designed with a helper’s room with WC and an additional powder room for guests.
Fully upgraded with a smart home system, the unit not only enhances convenience and lifestyle but also delivers impressive efficiency—helping to reduce electricity consumption by up to 70%.
A perfect blend of space, luxury, and smart living in one of Sentosa Cove’s most sought-after developments.
Getting Your Dream Home with Gary Zhuo 8***** today.
Amenities
Bathtub
Marble floor
Modern kitchen furnishing
Oven / microwave
Common facilities
24 hours security
Barbeque pits
Gymnasium room
Jacuzzi
Affordability
Tell us your monthly income and expenses to see if this home fits your budget.
The Coast at Sentosa Cove
The Coast at Sentosa Cove is a luxury condominium located along 276-280 Ocean Drive, within the prestigious Sentosa Cove enclave of District 04. Completed in 2010 by Ho Bee Land, one of Singapore's most established names in high-end residential development, this 99-year leasehold is positioned as a low-density waterfront residence catering to affluent owner-occupiers and lifestyle-focused buyers. The development comprises 249 residential units, arranged across three mid-rise blocks of up to approximately eight storeys. This emphasis on space and privacy distinguishes The Coast from higher-density waterfront condominiums, reinforcing its positioning as a refined, resort-style residence rather than a purely investment-driven project. The defining feature of The Coast at Sentosa Cove is its direct waterfront setting within Sentosa Cove, Singapore's only residential precinct that allows private marina berthing and offers an exclusive resort-style lifestyle. The development is surrounded by water features and lush landscaping, creating a calm, secluded environment that is markedly different from mainland condominiums. Architecturally, The Coast employs a low-rise style to integrate with the natural environment through landscaping, including water features, ponds, and extensive green space, reinforcing the image of a luxury resort. Unlike developments that rely heavily on vertical scale, The Coast is designed in a horizontal, low-rise format to provide greater privacy, openness, and uninterrupted views for many units. In addition, the combination of its carefully planned amenity spaces and serene atmosphere offers exceptional appeal to potential buyers seeking the benefits of a relaxing lifestyle rather than urban density. Despite its island setting, The Coast at Sentosa Cove remains well connected to mainland Singapore. Residents have access to the Sentosa Express (Waterfront Station), which links directly to HarbourFront MRT Interchange, providing connections to the North East Line and Circle Line. For drivers, Sentosa Cove is accessible via Sentosa Gateway, with onward connectivity to major expressways, including the Ayer Rajah Expressway (AYE) and Marina Coastal Expressway (MCE). Under normal traffic conditions, key destinations such as Orchard Road, Raffles Place, and Marina Bay are typically reachable within 15 to 25 minutes. This balance of seclusion and accessibility allows residents to enjoy resort-style living without being utterly detached from the city. The Coast at Sentosa Cove is situated along Ocean Drive, occupying a prominent waterfront site within District 04. The Coast at Sentosa Cove Condominium 99-year leasehold 249 residential units The Coast at Sentosa Cove offers an extensive suite of facilities designed to reflect a private resort environment rather than a conventional condominium. Facilities within the development include: 24-hour Security Car Park Lap Pool Wading Pool BBQ Pits Gym Jacuzzi Steam Room Function Room Private Berth Koi Pond Lotus Pavilion Cascading Landscaped Courtyard Reflecting Pools These facilities are distributed throughout the development to avoid crowding, allowing residents to enjoy amenities in a more relaxed, private setting. For families considering educational access within the Sentosa Cove precinct, schooling options are conveniently located nearby: Quayside Isle Preparatory School EtonHouse Pre-School by the Beach CHIJ (Kellock) This proximity supports a practical lifestyle for households seeking quality early education within the island enclave. Dining is a significant lifestyle draw of Sentosa Cove, with Quayside Isle serving as the precinct's primary dining and leisure hub. Notable dining options nearby include: SKIRT Restaurant SolePomodoro Trattoria Pizzeria Sabio by the Sea Miska Café Beyond Sentosa Cove, residents can also access the extensive dining and retail offerings at VivoCity and HarbourFront, further expanding lifestyle choices. Healthcare services are primarily accessed from the mainland, with a range of clinics and hospitals located around HarbourFront and the city fringe. Nearby medical facilities include: HMI-MHC Medical Clinic My Queen - Prenatal and Postpartum Wellness Centre Parkway Shenton Medical Clinic This ensures residents have reliable access to both routine and specialised medical care when required. Daily necessities are conveniently met via nearby retail hubs on the mainland. Residents can access: Cold Storage Sentosa Cove Little Farms Market 7-Eleven Jasons Deli Quayside Isle These options provide a full range of groceries and household essentials despite Sentosa Cove's exclusive, resort-style setting. The development consists of three residential blocks rising to approximately eight storeys, arranged to maximise water views and internal privacy. Three-Bedroom apartments: 1,915 to 2,120 sq ft Four-Bedroom apartments: 2,303 to 3,121 sq ft Penthouses (five-Bedroom equivalents): 3,476 to 4,855 sq ft The site layout emphasises landscaped open spaces, water features, and low-rise massing, reinforcing its resort-inspired identity. The Coast at Sentosa Cove is developed by Ho Bee Land, a well-established Singapore developer best known for its luxury residential developments, particularly within Sentosa Cove. The company has built a strong reputation for delivering high-end waterfront projects that emphasise quality, exclusivity, and long-term value. Ho Bee Land's extensive track record in Sentosa Cove has significantly shaped the precinct's identity as Singapore's premier luxury waterfront residential enclave. Other notable luxury developments by Ho Bee Land within Sentosa Cove include: Turquoise The Berth by the Cove Paradise Island These projects further reinforce the developer's specialisation in premium waterfront residences. The Coast is located among several established luxury residential developments within Sentosa Cove, including: Residence at W Sentosa Cove The Oceanfront @ Sentosa Cove Marina Collection Together, these developments form a cohesive luxury residential community centred around marina living and resort-style amenities. The Coast at Sentosa Cove is a luxury residential location for homebuyers. Low density, large units, and excellent amenities make this development attractive to home-occupiers who want privacy, a lifestyle, and prestige rather than urban crowding. It’s a leading development in District 04 for people who want to live in a marina, have easy access to the coast, and stay close to the city. Explore the latest sales and rental listings at The Coast at Sentosa Cove to find opportunities that match your lifestyle and investment goals.
View project details










