Parc Clematis
8F Jalan Lempeng
S$ 5,088,888
Negotiable5
Beds
4
Baths
2,164
sqft
S$ 2,352
psf
1.3 km (15 mins) from EW23 Clementi MRT
About this property
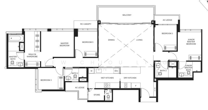
5 Bedroom Penthouse with landed view,high ceiling in living and master
There are only 8 Penthouses in the entire development. This is the only 5bedroom PH where the living room and all 5bedrooms are facing low-rise landed homes, giving you a permanent panoramic and unblocked landed view and exceptional privacy, no future high rise surprises.
Spanning a generous 2164sqft of elevated living space with 4.5meter high ceiling is absolutely gorgeous! A sense of luxury and openness usually found only in landed homes. Filling the home with abundant of natural light, air and a sense of quiet luxury. Ideal for hosting, entertaining and creating un forgettable memories with families.
The master suite offer 30sqm of full usable space with an impressive 3.9meter non-void ceiling, creating a bright, airy, hotel-like feel without wasted void area. Complete with a proper walk-in wardrobe, it deliver true comfort, privacy and luxury.
Parc Clematis is one of the most highly sought after condo in the West because it delivers a rare combination of education advantage, lifestyle scale, connectivity, and long-term value. Most notably, its within 1km to Nan Hua Primary school, making it the top choice for families who prioritise their children's education, a factor that consistently drives strong demand and resale value. Add to that its full condo facilities, residents enjoy resort style communal living on an exceptional scales, with approximately 400,000sqft of thoughtfully designed, the largest in the West. With around 60 facilities, this development is built for every lifestyle, including 3x 50meter lap pools, a stunning 100meter beach-inspired pool, 5x exclusive clubhouses, 6x dining pavilion, and many more spaces for fitness, relaxation and family bonding. It's a home where everyday living feels like a holiday.
Rare unit like this don't come up often, wait no more! Make an appointment with Lynn today to view this rare gem before it's gone!
Amenities
Air conditioner
Balcony
Bicycle parking
City view
Common facilities
24 hours security
Car park
Children's playground
Game room
Affordability
Tell us your monthly income and expenses to see if this home fits your budget.
Parc Clematis

Parc Clematis is a large-scale private condominium development located along Jalan Lempeng within District 05 (Buona Vista/West Coast/Clementi), an established residential and educational corridor in Singapore’s western region. The development occupies a substantial land parcel within the Clementi planning area, characterised by mature housing estates, schools, and established retail infrastructure. Developed by SingHaiyi Group Ltd through its subsidiary Sing-Haiyi Gold Pte Ltd, Parc Clematis is a 99-year leasehold project completed in 2023. It comprises 1,468 residential units, making it one of the most significant private residential developments in the Clementi precinct. The project features a combination of high-rise apartment blocks and strata-landed housing, including terraces, corner terraces, and bungalows. One of Parc Clematis’ defining characteristics is its scale and diversity of housing options, which is uncommon within the Clementi area. The inclusion of both high-rise apartments and strata-landed homes creates a varied residential environment while remaining within a single, cohesive development. The project is also positioned within a well-established education and employment catchment, benefiting from proximity to tertiary institutions, business parks, and research hubs in the west. The surrounding neighbourhood includes established retail centres such as Clementi Mall and recreational spaces near Pandan Reservoir, providing day-to-day convenience without reliance on future infrastructure development. Parc Clematis integrates smart-home features and extensive communal facilities, reflecting a contemporary residential planning approach. Combined with its landscaped grounds and internal amenities, the development is positioned as a self-contained residential enclave rather than a purely high-density urban project. Parc Clematis enjoys convenient access to public transportation and major road networks. Clementi MRT Station (EW23) is located within walking distance, providing direct rail connectivity to the city centre, Jurong East, and other key employment nodes along the East-West corridor. For residents who commute by car, the development is well connected to the Ayer Rajah Expressway (AYE), allowing efficient travel towards the Central Business District, One-North, and Jurong Lake District. Parc Clematis is planned as a comprehensive residential environment with a broad range of shared facilities designed to support everyday living. Parc Clematis Condominium 99-year Leasehold 633,644 sq ft 05 2023 1,468 Up to approximately 24 storeys Facilities within the development include: Car Park Tennis Court Game Room Gym Multi-Purpose Entertainment Area Rain Spa Pavilion Playground 24-Hour Security Reading Lawn Rain Garden Community Garden Cabana Stargazing Lawn Sky Garden Picnic Lawn Jacuzzi Aquatherapy Pool Reflexology Garden Hydrotherapy Pool Dining Pavilion 50m Lap Pool Courtyard Pavilion Pet Lawn Pet’s Playground Toddler Play Pool Kid’s Water Play Area Kid’s Playhouse Dance Studio Multi-Purpose Games Room Main Pool Camping Garden Sports Arena Outdoor Fitness Area The overall facilities planning reinforces Parc Clematis’ positioning as a long-term residential community rather than a lifestyle-focused showcase development. Parc Clematis is situated within proximity to several educational institutions, making it suitable for families with children across different age groups: Nan Hua Primary School Clementi Primary School NUS High School of Mathematics and Science Singapore Polytechnic The presence of these institutions supports consistent housing demand from family-oriented households and owner-occupiers. Residents of Parc Clematis have access to a wide range of dining options across Clementi and the surrounding west: Clementi 448 Market & Food Centre Island Penang Kitchen Jovis Cafe - The Dining Place All this meets both daily dining needs and weekend leisure preferences without extensive travel. Healthcare accessibility is supported by the surrounding Clementi and West Singapore districts, which host a range of clinics and medical centres: Clementi Polyclinic Healthway Medical Raffles Medical Clementi This ensures that routine consultations and healthcare remain conveniently available. Daily necessities are readily available at supermarkets and retail outlets in Clementi and nearby neighbourhoods. Scarlett Supermarket (Grantral Mall - Clementi) FairPrice Finest The Clementi Mall Sheng Siong Supermarket These options ensure everyday convenience without reliance on new or future retail developments. Parc Clematis occupies a large residential site along Jalan Lempeng, with a master plan that integrates high-rise residential blocks and strata-landed homes within landscaped surroundings. One Bedroom: 452 - 624 sqft One Bedroom + Study: 506 - 710 sqft Two Bedroom: 689 - 893 sqft Two Bedroom + Study: 743 sqft Two Bedroom Dual-Key: 700 - 861 sqft Three Bedroom: 829 - 1,076 sqft Three Bedroom Dual-Key: 969 - 1,216 sqft Three Bedroom Premium: 1,044 - 1,475 sqft Four Bedroom: 1,238 - 1,475 sqft Four Bedroom Premium: 1,292 - 1,765 sqft Five Bedroom: 1,636 - 1,970 sqft Five Bedroom Premium: 1,711 - 1,981 sqft Bungalow: 3,832 sqft Corner Terrace: 3,466 sqft Penthouse: 1,991 - 2,669 sqft Terrace: 2,659 sqft The scale of the development allows for extensive landscaping while accommodating a high unit count within a managed residential environment. Parc Clematis is a property development created by SingHaiyi Group Ltd, a Singapore-based property developer that develops both residential and mixed-use properties. SingHaiyi focuses on delivering high-quality construction and efficient layouts, particularly in urban residential developments. The Group has continued its focus on high-quality residential developments throughout multiple projects. It is also helpful to note other developments by the same developer that reflect a similar design philosophy and residential positioning: The Gazania The Lilium Sora These projects demonstrate a consistent development approach, providing buyers with additional points of reference within the same portfolio. Parc Clematis is situated within an established Clementi residential landscape, surrounded by private condominiums and long-standing housing estates such as: The Trilinq Regent Park Dover Parkview These surrounding developments contribute to a mature neighbourhood environment supported by existing infrastructure, schools, and amenities. Parc Clematis offers a large-scale residential option in a mature, well-connected part of Singapore’s western region. For families seeking space, good transportation, and convenient access to existing services and facilities in District 05, Parc Clematis offers a balanced, practical option for family living. Check out the latest sales and rental listings at Parc Clematis to identify a home that aligns with your space needs and long-term living objectives.
View project details

















