Midwood
8 Hillview Rise
S$ 1,990,000
3
Beds
3
Baths
990
sqft
S$ 2,010.10
psf
360 m (4 mins) from DT3 Hillview MRT
About this property
Super High Floor, Pool & Unblocked Greenery View, Mall & MRT Beside!
Super High Floor! Surrounded by Two Pool Views plus Unblocked Greenery View.
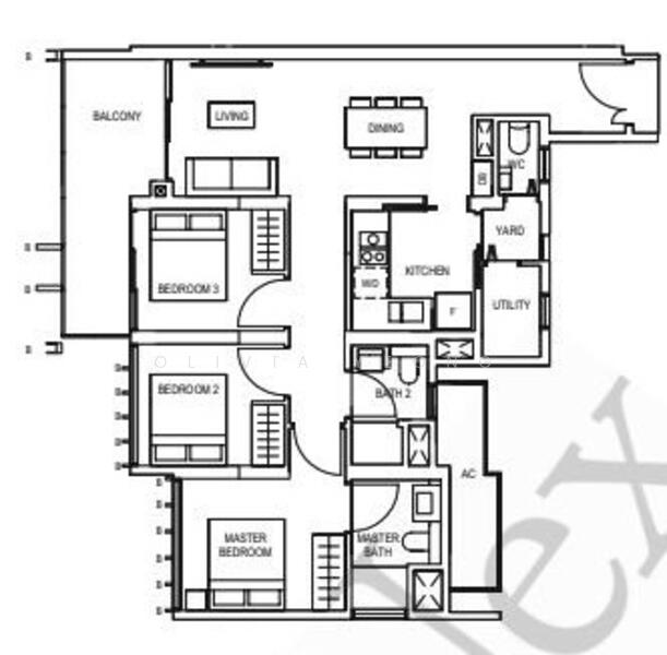
● Premium Layout with WC & Yard
● Very serious seller!
● Bright and breezy
● Corner Unit
● No afternoon sun
● Spacious layout
● Well renovated
● Generous and smart storage space with utilities
● Functional enclosed kitchen layout
Location:
● Superb locaility, 3 mins walk to Hillview MRT Station (DT3)
● Hill V2 right by door step, Cold Storage Supermarket & Eateries
● Abundance of amenities – HillV2, Rail Mall, Hillion Mall, Bukit Panjang Plaza, Junction 10, eateries and transport
Schools:
● Within 1km: CHIJ Our Lady Queen of Peace
● Within 2km: Bukit Panjang Primary School, Dazhong Primary School, Deming Primary School, Lianhua Primary School, St. Anthony’s Primary School, Zhenghua Primary School
Contact me @ 8***** for a viewing your next home!
Olivia Yeong
Associate Group Director
PropNex Realty Pte Ltd
Amenities
Air-conditioning
Balcony
Cooker hob/hood
Corner unit
Common facilities
24 hours security
Barbeque pits
Clubhouse
Lap pool
Affordability
Tell us your monthly income and expenses to see if this home fits your budget.
Midwood

Midwood is a 99-year leasehold condominium located at Hillview Rise, Singapore 667971, in District 23. The condominium development is located in the Hillview estate, an area known for its calm setting, green surroundings, and good transport links. Completed in 2024, Midwood comprises 564 residential units and was developed by Hong Leong Holdings Limited. Midwood consists of two 29-storey towers connected by a covered bridge. This link between the towers forms a distinctive feature within the development. The bridge not only connects the two blocks but also adds a strong visual element to Hillview's skyline. The overall design features clean lines, glass panels, and landscaped spaces that blend with the natural environment. The project offers one-bedroom apartments to four-bedroom units and deluxe penthouses. One of the key highlights of Midwood is its location in the Hillview estate. The area is known for tree-lined roads and proximity to green spaces. Residents can easily access nearby nature areas such as Bukit Timah Nature Reserve. This reserve provides walking trails and natural scenery, offering a refreshing change from city life. Midwood also has access to major expressways, including the Bukit Timah Expressway (BKE) and the Pan Island Expressway (PIE). These roads link residents to various areas of Singapore. They also provide access to the Central Business District (CBD) and Orchard Road. For drivers, this improves daily travel and reduces commuting time. Midwood benefits from strong public transport connectivity. Residents can walk to Hillview MRT Station (DT3) on the Downtown Line in about five minutes. This station provides direct connections to key areas such as Bukit Timah, Newton, and Marina Bay. The Downtown Line makes travelling to the city centre simple and convenient. For drivers, the Bukit Timah Expressway (BKE) and Pan Island Expressway (PIE) are nearby. These expressways link to major business and shopping areas across Singapore. The road network around Hillview supports smooth travel during daily commutes. The presence of these amenities within walking distance adds to the convenience of living at Midwood. Residents can handle daily tasks, shopping, and meals without travelling far. Midwood occupies a site area of about 14,296 sqm at Hillview Rise. The two 29-storey towers are arranged to allow space for facilities and landscaped areas within the compound. The covered bridge that links the towers forms a key architectural feature. Midwood Condominium 23 564 residential units Midwood is designed to provide a range of facilities that support relaxation, exercise, and social interaction. The development features: Barbecue area Clubhouse Lap pool Lounge Multi-purpose hall Pool deck Playground 24 hours security Wading pool The facilities are arranged within landscaped grounds, creating a calm atmosphere where residents can unwind after work. Families living in Midwood can consider several choice schools within the Hillview and Bukit Batok area. These include: Assumption Pathway School Assumption English School The Perse School Singapore These schools provide different education pathways and learning environments. Residents at Midwood can enjoy a range of dining options around Hillview. Some nearby restaurants include: Cacio e Pepe Italian Restaurant iO Italian Osteria Chong Qing Grilled Fish These dining spots offer a mix of Western and Asian cuisine. Access to healthcare is an important part of daily life. Residents of Midwood can visit nearby clinics such as: Phoenix Medical Group at Hillview Pinnacle Family Clinic at Dairy Farm Healthcare Medical at Rail Mall These clinics provide general medical services for families and individuals. Daily grocery needs are supported by several supermarkets in the area, including: AK Supermarket 888 Minimart CS Fresh HillV2 These stores offer fresh produce, packaged goods, and daily essentials. The development includes green landscaping, water features, and open spaces around the facilities. The layout separates residential blocks from activity zones, helping to maintain privacy while supporting community interaction. One Bedroom: 45 to 46 sqm One Bedroom with Study: 51 sqm Two Bedrooms: 59 to 65 sqm Two Bedrooms with Study: 72 to 73 sqm Three Bedrooms: 83 to 84 sqm Three Bedrooms with Yard: 92 sqm Four Bedrooms: 116 to 117 sqm The range of unit sizes allows different groups of buyers and tenants to find a home that suits them. Compact units may suit singles and couples, while larger layouts support families. Hong Leong Holdings Limited, a Singapore-based property developer with a wide portfolio of residential projects, developed Midwood. The company focuses on creating homes near MRT stations, shopping centres, and green spaces. Hong Leong Holdings has been involved in many private residential developments across Singapore. Its projects often include landscaped grounds and shared facilities that support a balanced lifestyle. Midwood reflects this approach, with its proximity to a train station and natural areas. Other residential developments by Hong Leong Holdings include: The Tate Residences AALTO Watermark Robertson Quay These projects add to the developer’s portfolio across different districts in Singapore and demonstrate their experience delivering private housing. Midwood is located in a residential area that includes several other developments, such as: Hillview Park Hillington Green Parc Palais The presence of these neighbouring projects forms an established residential cluster in Hillview. The area continues to attract homeowners who prefer a quieter setting with access to transport and amenities. Midwood presents a modern condominium within the calm surroundings of Hillview. The two towers linked by a covered bridge create a distinct visual feature, while the range of unit types meets a variety of household needs. With facilities such as a lap pool, clubhouse, playground, and 24 hours security, Midwood provides a complete residential environment in District 23. The nearby supermarkets, dining options, clinics, and choice schools add to daily comfort. Midwood remains a suitable option for individuals and families seeking a home in a well-connected yet peaceful estate in Singapore. For more details and available listings, visit the Midwood sale or rent page.
View project details
















