Leedon Green
26 Leedon Heights
S$ 8,500,000
Negotiable4
Beds
4
Baths
2,680
sqft (floor)
S$ 3,172
psf (floor)
670 m (8 mins) from CC20 Farrer Road MRT
About this property
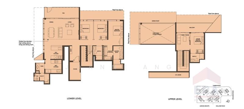
Brand New! Rare Freehold Garden Villa! 1km to Nanyang Primary!
** Rare Brand New, Freehold Villa in Leedon Green For Sale!
Prime D10
2680sf
Duplex
Squarish & Efficient Layout
There is only 5 such luxurious Villas in Leedon Green.
Level 1:
Spacious Living & Dining Area with high ceiling of 4.2M
Wet & dry kitchen
Luxurious master bedroom
Spacious common bedroom
Helpers Room with Yard Area
Cozy outdoor patio area
Level 2:
Balcony
Huge and luxurious Junior Master Bedroom
Conveniently located:
- Walk to Farrer Road MRT
- Mins to Holland Village
- Mins to Amenities and food options
- Mins drive to Orchard Shopping Belt
Education institutions:
- Within 1Km to Nanyang Primary School
- 1KM to 2KM: to New Town Primary; Queenstown Primary; Raffles Girls’ Primary
- Mins drive to prestigious schools along Bukit Timah
** Contact Joanne Ang @ 8***** for private viewing.
Come home to unparalleled living experience, where natural beauty and refined luxury coexist harmoniously.
Amenities
Air conditioner
Balcony
Cabinets
Car parking outside
Common facilities
24 hours security
Barbeque pits
Basement car park
Car park
Affordability
Tell us your monthly income and expenses to see if this home fits your budget.
Leedon Green

Leedon Green (former Tulip Gardens) is a freehold condominium located at the corner of Farrer and Holland Road in District 10. The residence is jointly developed by Yanlord Land Group and MCL Land. Yanlord Land Group is one of the most reputable property developers in China while MCL Land is a leading private residential developer in Singapore with over 50 years of experience in the real estate segments within Singapore and Malaysia. The exterior forms and landscaping at Leedon Green is inspired from terrace landforms in nature, aiing to create a timeless style of undulating terrain, cascading waterfalls and lush greenery blended with organic materials. Residents can relax in a full suite of facilities and a pool for every dip ranging from the 50-meter lap pool, dip pool pods, sky decks and jacuzzi with a full suite concierge creating a forever-vacation feeling. Moreover, the well-situated Leedon Green covers prime residential districts in the Central area, for example residents who appreciate trendy nightlife will appreciate the proximity to Holland Village and Dempsey Hill. The residence is a strategic place of stay for those working in the biotechnology field as they can enjoy easy access to work with the Biopolis and Fusionopolis just around the corner. In addition, the location is surrounded by a wide range of options of shopping, banks, dining and supermarkets as well as lifestyle amenities. Overall accessibility is seamless, making the residence an attractive option to house seekers. Located in the prime central area, residents are surrounded by different travel options. Residents can enjoy excellent connectivity in Farrer Road with Farrer Road MRT station just a short distance walk away. Holland Village MRT station on the Circle Line is just a few minutes away while Commonwealth station on the East-West line and Botanic Gardens station on the Downtown Line are easily accessible by bus. Orchard Road and the Central Business District are just minutes’ drive past the Botanic Gardens and Dempsey Hill. Empress Food Centre Nanyang Primary SchoolHwa Chong InstitutionNanyang University of SingaporeHenry Park Primary SchoolMargaret’s Secondary SchoolNational Junior CollegeLee Kuan Yew School of Public Policy Ridgewood Medical ClinicHealthLink Family Clinic & SurgeryOneDoctors Family Clinic Holland Village Shopping Centre Leedon Green comprises of 638 units in total, spanning across 7 residential blocks of 12 storey each. There is a wide range of unit types from 1 bedroom to 4 bedrooms. Leedon Green offers a premium living experience with each apartment unit having imported furnishing and fittings to reduce the hassle of moving into a new home.Project Name: Leedon GreenType: CondominiumDistrict: 10Configuration: 638 residential unitsSite area: 316,708 square feet Unit types for Leedon Green:1 room (474 square feet)1 room sky unit (603 – 689 square feet)1+1 room (538 – 581 square feet)2 rooms (614 – 872 square feet)2 rooms sky unit (753 – 926 square feet)2+1 rooms (818 square feet)3 rooms (958 – 1,485 square feet)3 rooms premium (1,044 – 1,163 square feet)3 rooms sky unit (1,604 square feet)4 rooms (1,496 – 2,680 square feet)4 rooms sky unit (1,744 square feet) The following developments are in the same neighbourhood as Leedon Green:Boulevard 88d'Leedon (Former Farrer Court)Nouvel 18Royalgreen3 Orchard By-The-ParkFourth Avenue Residences
View project details











