D'Weave
5 Lorong 39 Geylang
S$ 950,000
Negotiable2
Beds
1
Bath
506
sqft (floor)
S$ 1,877
psf (floor)
520 m (6 mins) from EW8/CC9 Paya Lebar MRT
About this property
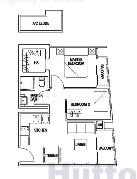
Freehold private 2-bedroom gem near Paya Lebar MRT
* Flexible layout – Common room wall can be removed to create a more spacious living area
* Bright and private – A peaceful unit with excellent comfort and privacy
* Enjoy full condo facilities: Swimming pool, gym, BBQ pits
* Superb location – 3 to 5 mins' walk to Paya Lebar MRT (Circle & East-West Lines)
* Surrounded by amenities: Paya Lebar Square, Kinex Mall, eateries, supermarkets, and food centres
* Freehold status – Long-term value and investment potential
* Friendly owners, open to discussion
Perfect for singles, couples, or savvy investors looking for a well-connected, freehold unit with great potential.
Happy to host a viewing Sharifah @ +6*****
Common facilities
Barbeque pits
Gymnasium room
Swimming pool
Affordability
Tell us your monthly income and expenses to see if this home fits your budget.
D'Weave
D’Weave is a freehold condominium development located at 5 Lorong 39 Geylang, Singapore 387866 in District 14. The property was built in the year 2015. The sole developer of this project are Teambuild Properties Pte Ltd. Teambuild Properties Pte Ltd is registered as a Private Company Limited by Shares. The company was incorporated in the year 2005. D’Weave is located at Geylang in District 14. This area is a great for families and working individuals as well because of its safety and convenience. One of the most important things a buyer looks for in a property are the security features. The security arrangements at D’Weave are mediocre to say the least. The only security arrangement they have is a moderately armed watchman monitoring the situation on the entrance of the condominium. The units are made beautifully and spaciously. The units are quite large and airy too. The view from the window is extremely beautiful due to the tree plantation around the condominium. There is a BBQ area where you can arrange your BBQ party for your kids, family and friends. There is a large sized swimming pool which can be used for relaxation or workout. By the way, swimming is a great cardiovascular exercise. There are some of our customers who value their fitness a lot. This is the reason why they regularly go to a gym. However, they do desire to have a proper and well-equipped gym under their residence. D’Weave listens to its customers and has installed a well-equipped gym with qualified trainers so that you remain fit and lean. D’Weave is located in District 14 which is a very nice and secure location. The project is surrounded by many retail outlets and shopping centers. Cellarbration is just 10 minutes away from the condominium. There are good shopping centers in areas like Orchard Road. However, Orchard Road is a little far from the development. If you own a car, then travelling would not be an issue for you no matter how far your destination is. There are also parking spaces for the vehicles of the residents. There is also a gas station nearby. However, if you don’t own a car, you can consider these options. You can hire a cab from the nearest taxi stand or stop an empty cab on the road when you see it. You can also book a cab via Uber or Grab. If you want to catch a train, the nearest MRT stations are i.e. CC9 Paya Lebar MRT Station, EW8 Paya Lebar MRT Station and CC8 Dakota MRT Station Yong He Eating HouseB. Ah Meng RestaurantSin Huat SeafoodTanjong Rhu Pau & ConfectioneryEminent Frog PorridgeLiu Da Ma BBQ Bar RestaurantEastern House of Seafood DelicacyFatt Choy Mui Seafood Restaurant Lion City Company - Electrical Home & Kitchen Appliances Online SingaporeFishing Buddy Pte Ltd - East BranchAh Hung D24 Sultan DurianGuru Nice BakeryGemini FurnitureGrabFlowers SingaporeKallang Estate MarketPopular Bookstore - Chung Cheng High School (Main)Kong Hwa SchoolNorthlight SchoolGeylang Methodist SchoolGeylang East Public LibraryChin Lien Bible SeminaryIP Academy SingaporeBroadrick Secondary SchoolIroha Kindergarten Amitabha Buddhist SocietyMasjid KhadijahSri Krishnah MandirGuilin Building ChurchCheng Beng Buddhist SocietyCoronation Baptist ChurchMao Yin Chanting CentreHui Ming Buddhist Society Marina Bay SandsMerlion ParkGardens by the BayChinatownOrchard RoadFort Canning Park D’Weave is a freehold condominium located at 5 Lorong 39 Geylang, Singapore 387866 in District 14. The sale price range is S$ 800,000 - S$ 1,380,000 and the rental price range is S$ 979 - S$ 1,581. There are 5 floors and 71 residential units Guilin MansionsSunny GroveBlossom MansionsD’WeaveMoro Mansion
View project details














