Skypark @ Somerset
22 Saint Thomas Walk
S$ 22,000 /mo
4
Beds
4
Baths
3,347
sqft (floor)
610 m (7 mins) from TE15 Great World MRT
940 m (11 mins) from NS23 Somerset MRT
Ready to move in Apartment
About this property
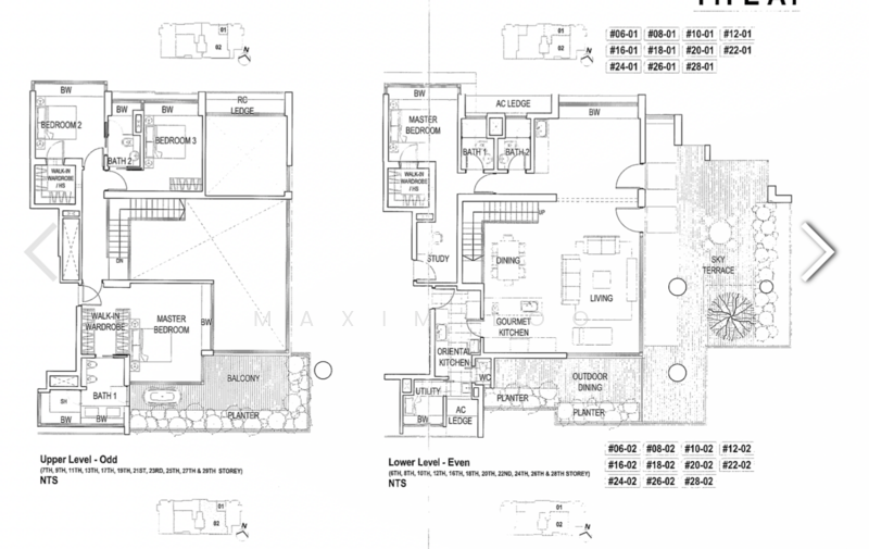
Luxury 4-Bedroom Sky Villa Duplex for Rent
- Level 1 welcomes you into expansive living, dining, and family areas, seamlessly connected to both wet and dry kitchens—ideal for everyday living and entertaining. This level also features a bedroom with ensuite bathroom, a utility room, and a separate helper’s room for added convenience.
- Level 2 is dedicated to private living. The master suite boasts an ensuite bathroom, walk-in wardrobe, and a private balcony. Two additional bedrooms are well-proportioned and share a common bathroom, making the layout perfect for families.
Positioned on a high floor, the residence is crowned with a grand private terrace of approximately 800 sq ft, offering an exceptional outdoor space for entertaining, relaxation, or enjoying panoramic views.
A rare offering that combines space, luxury, and lifestyle—ideal for discerning tenants seeking a premium home in the sky.
For more information and viewing please connect with Appointed Agent
Max Loo +6.5.9.7.7.7.5.5.6.5.
CBRE Pte. Ltd.
Amenities
Air conditioner
Balcony
Bathtub
Bicycle parking
Skypark @ Somerset

Located at 22 Saint Thomas Walk Singapore 238107 in District 9, Skypark @ Somerset is a freehold apartment developed by TG Development Pte Ltd which was established in 1987. Completed in 2010, this relatively new property has 56 beautifully designed units spread on 32 storeys. Skypark @ Somerset won TG Development Pte Ltd the Singapore Institutes of Architects – Architectural Design Award in 2011. As the units at Skypark @ Somerset are 3 and 4 bedroom units, this commanding high rise apartment is very suitable for families that need the extra space. Skypark @ Somerset is a freehold apartment that boasts of superb architectural design. Skypark @ Somerset are essentially houses in a residential tower in which residents get to enjoy the wide open areas as well as superbly stunning views of the city. With a 40 meter pool and an elegant sky terrace, Skypark @ Somerset residents have the option of unwinding after a long day. Its strategic location also means that residence close by a host of restaurants, retail shops and entertainment. The neared MRT station to Skypark @ Somerset is the Somerset MRT station, which take one about 7 minutes to walk to (520m). The Orchard MRT station is a little further away and will take one about 15 minutes to reach (1.09km). Bus stops are even nearer, with the St. Thomas Wk bus stop only 2 minutes away (170m). Other bus stops within walking distance are the Kim Yam Road bus stop, Riva Lodge bus stop, National Youth Council bus stop and Somerset bus stop. With public transport so readily available, residents of Skypark @ Somerset will have no difficulties getting around the city. Skypark @ Somerset’s close vicinity to major shopping malls are a plus point as well, giving residents plenty of options when it comes to dining and entertainment. Crystal CaféDomino's KillineyLawry's The Prime RibDin Tai FungSalt Grill & Sky Bar by Luke Mangan 313@SomersetOrchard CentralGreat World CityLucky PlazaParagon Shopping Centre River Valley Primary SchoolChatsworth International SchoolInternational School Singapore (Elementary)Saint Presbyterian SchoolSwedish Supplementary Education School Kim Seng ParkIstana ParkPenang Road Open SpaceBuldozer Park Completed in 2010, Skypark @ Somerset is a freehold apartment made up of 56 elegantly designed units. Selling price for the units are roughly about S$1760 per square feet while rental prices range from S$13,000 to S$16,000 per unit. Project Name: Skypark @ SomersetType: Freehold ApartmentDistrict: 09Configuration: 32 floors, 56 units Unit Types:3 bedroom 2 bathroom3 bedroom 3 bathroom3 bedroom 4 bathroom4 bedroom 3 bathroom4 bedroom 4 bathroom4 bedroom 5 bathroom The following are developments in the same neighbourhood as Skypark @ Somerset:Parc SophiaMackenzie 88One Oxley RiseParc MackenzieNewton Edge
View project details























