One Bernam
1 Bernam Street
S$ 4,100 /mo
Starting From1
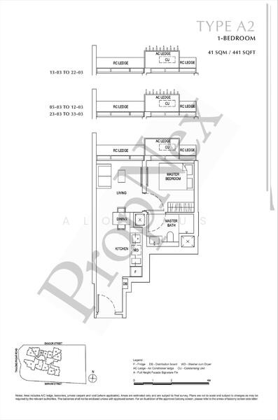
Bed
1
Bath
441
sqft (floor)
500 m (6 mins) from EW15 Tanjong Pagar MRT
Ready to move in Condominium
About this property
Super Cheap! Resident Agent! With Multiple Units! One Call View All!
**ARRANGE A VIEWING WITH ME TODAY**
**RESIDENT AGENT**
**KEYS ON HAND**
**ONE CALL, VIEW ALL**
One Bernam | Brand New 1BR | 463 sqft | $4,300/month
Be the first to stay in this brand new 1-bedroom, 1-bathroom unit (463 sqft) at One Bernam, D02! Perfect for professionals seeking modern city living.
Just TOP – brand new unit!
Walk to Prince Edward (0.38 km) & Maxwell MRT (0.41 km)
Near Tanjong Pagar, Cantonment Primary, CBD offices
Surrounded by malls (100 AM, International Plaza, Tanjong Pagar Centre)
Famous eats nearby: Amoy, Maxwell & Chinatown hawker centres
$4,300/month – great value for a new city-fringe luxury home.
Contact Aloysius Ng @ 8.8.1.3.2.7.5.8 for an exclusive viewing today!
Common facilities
24 hours security
Aircon facilities
Barbeque pits
Cafes
One Bernam

One Bernam is a 99-year leasehold mixed-use development located at Bernam Street in District 2 (D2). Located within the Central Business District (CBD), One Bernam is enclosed by Bernam Street, Tanjong Pagar Road, and Enggor Street in the Core Central Region (CCR). This translates to unrivalled accessibility to amenities such as supermarkets as well as well-equipped malls housing various retail and dining establishments. One Bernam‘s lucrative location in the CBD ensures a strong demand for housing, particularly from potential tenants working in the area. One Bernam is less than five minutes away from Tanjong Pagar MRT Station (EW15) on the East-West Line (EWL). Travelling via the EWL, residents can access major train lines such as the North-South Line (NSL) at Raffles Place MRT station (NS26/EW14), North-East Line (NEL) and Thomson-East Coast Line (TEL) at Outram Park MRT station (EW16/NE3/TE17), as well as the Circle Line (CCL) at Dhoby Ghaut MRT station (NS24/NE6/CC1). Upon completion of the CCL in 2025, The Prince Edward MRT station (CC32) will be a 5-minute walk away. This new station will connect residents directly to Harbourfront MRT station (NE1/CC29) where they can explore Vivocity or hop over to Sentosa Island. Commuters can also head to Marina Bay where they can check out various attractions such as Gardens by the Bay, the Art Science Museum, and Marina Bay Sands. For drivers, One Bernam is a short drive to expressways such as the Ayer Rajah Expressway (AYE) and Marina Coastal Expressway (MCE). Sitting on a site area of approximately 41,400 sq ft, One Bernam houses 351 exclusive residential units across 32 storeys with a lap pool and communal facilities. The 35-storey development also has a commercial podium on the first and second floors dedicated to a commercial podium and a dedicated floor for 13 service apartment units. With the commercial component located on the bottom few floors of the development, One Bernam’s residential component will start from the fifth floor. This ensures that even low-floor units will enjoy elevated views over Tanjong Pagar’s cityscape. Garden Walk Leisure Deck Chill Out Deck Yoga Deck Fragrant Garden Shaded Garden Palm Garden Garden Bridge Path Over Reflective Water Waterwall Alocasia Walk Viewing Deck Garden Dining Pavilion Gourmet Function Room Club House Swimming Pool Spa Pool Lounge Deck Pool Pavilion I Pool Pavilion II Kokedama Garden Tatami Deck I Tatami Deck II Relaxation Corner Outdoor Terrace Sky Dining Function Room Roof Terrace Sky Garden Pavilion North Sky Garden South Sky Garden Sky Hammock I Sky Hammock II Sky Gym Active Deck Fitness Deck Cantonment Primary School (within 1km radius) CHIJ (Kellock) Outram Secondary School Stamford Primary School Families with young children can find preschools such as the Mulberry Learning Centre, My First Skool, Modern Montessori Preschool @ Pinnacle, and Da Little Preschool at Cecil near the vicinity. For expatriate families, international schools such as the Ascensia International School, Tanglin Trust School, and United College of South East Asia Dover Campus are also easily accessible. Nearby healthcare facilities include: Outram Medical Campus (houses Singapore General Hospital, Outram Polyclinic, and Singapore National Eye Centre) As a mixed-use development, the condo will offer residents both retail and dining options at the convenience of their doorsteps. One Bernam is also just two minutes from 100 AM Mall and Icon Village. In addition to more dining options, residents can also find essential services and supermarkets such as Cold Storage and Fairprice Finest in the respective malls. Alternatively, residents can take a short train ride to the Orchard shopping belt, explore the heritage-rich spots in Chinatown or cafe hop in Tiong Bahru. Residents looking for local food and fresh produce can check out the Tanjong Pagar Plaza. One Bernam is a joint venture between MCC Land and Hao Yuan (HY) Realty. HY Realty is a Chinese developer with more than a decade’s experience developing properties in Singapore. Incorporated in Singapore in 2010, MCC Land has spearheaded various developments locally including mixed-use developments, private condominiums, and Executive Condominiums. Notable joint projects by HY Realty and MCC Land include Alps Residences, Northwave Executive Condo, and Queens Peak. Units range from 1 to 3-bedroom configurations, and three exclusive penthouse units on the 35th floor. With most units in the north-south orientation, residents get to enjoy expansive views of the Great Southern Waterfront and the cityscape at the sky terrace. Thoughtfully positioned windows in all homes also ensure that none of the residential units are exposed to harsh sunlight throughout the day. Residential units primarily come with a dumbbell-shaped layout for maximised functionality and optimal use of space. With hybrid working arrangements becoming the norm, the Urban Redevelopment Authority (URA) launched plans to recalibrate Singapore’s CBD to better meet this new norm. The CBD Incentive Scheme seeks to convert Singapore’s CBD from office districts to bustling mixed-use neighbourhoods by incentivising developers to inject a lifestyle twist into the CBD. This scheme will also support active mobility by combining better-designed pedestrian-centric roads with public spaces into Robinson Road, Cecil Street, Shenton Way, Anson Road, and Tanjong Pagar. The former Tanjong Pagar Port will be redeveloped as part of the Greater Southern Waterfront transformation. This will make way for new attractions, housing projects, and office spaces. While this vision would require a decade or so to materialise, the newly completed district could elevate the value of projects in surrounding neighbourhoods. MCC Land and HY Realty secured the site with a winning bid of $440.9 million, which works out to $1,463 psf per plot ratio (psf ppr). Given that there have been no new condo launches in Tanjong Pagar since Wallich Residences in 2013, One Bernam can ease pent-up demand for new properties in the area. One Bernam's location in the heart of Singapore’s CBD will yield strong rental demands from those working in the area. With the potential to ride on the future Greater Southern Waterfront development and the CBD Incentive Scheme, the development makes a promising option for discerning investors looking to capitalise on the leasing potential of the project’s location. Check out One Bernam listings for sale and units for rent on PropertyGuru Singapore.
View project details



















