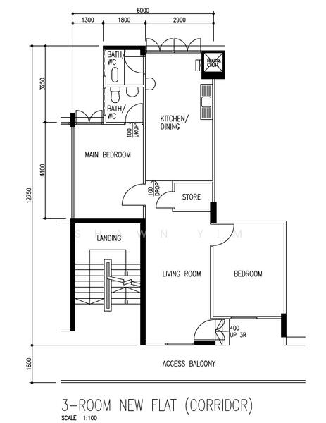
1 HDB Flat for Sale - 3 Bedrooms at 528 Jurong West Street 52
Map View
We’ve shown you all the matches
Almost there!
Refining your recommendations.
This may take a few seconds...
528 Jurong West Street 52
528 Jurong West Street 52 640528(D22) Boon Lay / Jurong / Tuas
Summary
528 Jurong West Street 52
Read more
Project details
TypeHDB
PriceS$ 425K - 450K
Completion year1982
Tenure99-year Leasehold
No. of blocks1
No. of floors12
DeveloperHousing & Development Board (HDB)
Explore PropertyGuru
Properties by ownership












