2 HDB Flats for Sale - High Floor at 40 Sims Drive
Map View

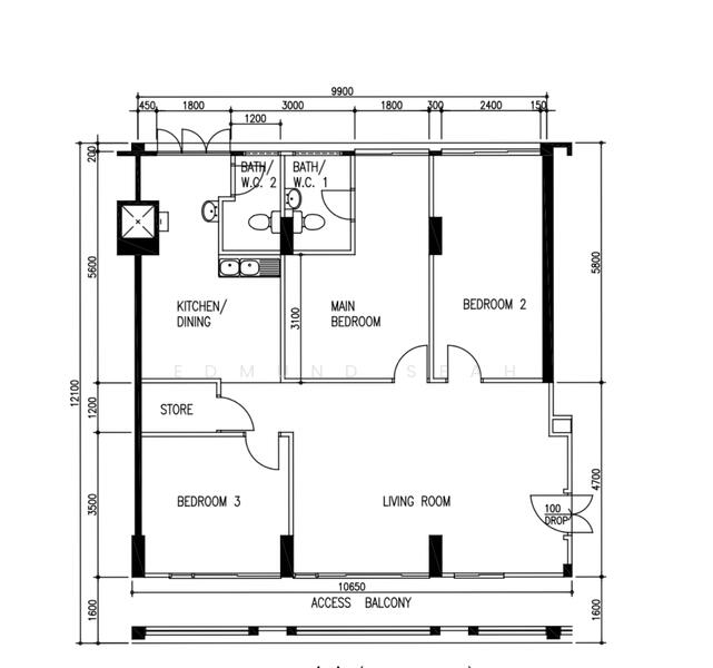
40 Sims Drive
40 Sims Drive 380040(D14) Eunos / Geylang / Paya Lebar
Summary
40 Sims Drive
Read more
Project details
TypeHDB
PriceS$ 648K - 800K
Completion year1989
Tenure99-year Leasehold
No. of blocks1
No. of floors12
DeveloperHousing & Development Board (HDB)
Explore PropertyGuru
Properties by ownership