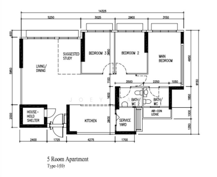
2 HDB Flats for Sale - Minimum Floor Area 900 Sqft at 323A Sumang Walk
Map View
We’ve shown you all the matches
Almost there!
Refining your recommendations.
This may take a few seconds...
323A Sumang Walk
323A Sumang Walk 821323(D19) Hougang / Punggol / Sengkang
Project details
TypeHDB
PriceS$ 810K - 850K
Tenure99-year Leasehold
No. of blocks1
Top facilities
Car park
DeveloperHousing & Development Board (HDB)
Explore PropertyGuru
Properties by ownership











