987C Jurong West Street 93 - 1 Units for Sale
Map View
We’ve shown you all the matches
Almost there!
Refining your recommendations.
This may take a few seconds...
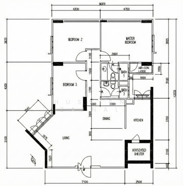
987C Jurong West Street 93
987C Jurong West Street 93 643987(D22) Boon Lay / Jurong / Tuas
Summary
987C Jurong West Street 93
Read more
Project details
TypeHDB
Completion year2006
Tenure99-year Leasehold
No. of blocks1
No. of floors18
Top facilities
Car park
DeveloperHousing & Development Board (HDB)
Explore PropertyGuru
Properties by ownership






