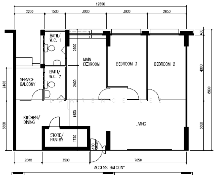
936 Hougang Street 92 - 3 Units for Sale
Map View
We’ve shown you all the matches
Almost there!
Refining your recommendations.
This may take a few seconds...
936 Hougang Street 92
936 Hougang Street 92 530936(D19) Hougang / Punggol / Sengkang
Summary
936 Hougang Street 92
Read more
Project details
TypeHDB
PriceS$ 628K - 828K
Completion year1997
Tenure99-year Leasehold
No. of blocks1
No. of floors14
DeveloperHousing & Development Board (HDB)
Explore PropertyGuru
Properties by ownership








