508 Bedok North Avenue 3 - 1 Units for Sale
Map View
We’ve shown you all the matches
Almost there!
Refining your recommendations.
This may take a few seconds...
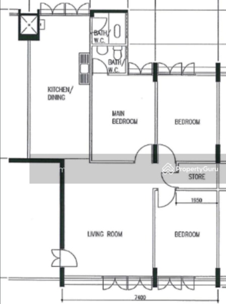
508 Bedok North Avenue 3
508 Bedok North Avenue 3 460508(D16) Bedok / Upper East Coast
Summary
508 Bedok North Avenue 3
Read more
Project details
TypeHDB
Completion year1977
Tenure99-year Leasehold
No. of blocks1
No. of floors14
DeveloperHousing & Development Board (HDB)
Explore PropertyGuru
Properties by ownership
Properties by furnishing
Properties by price per sqft.
Properties by year constructed











