421 Choa Chu Kang Avenue 4 - 2 Units for Sale
Map View
We’ve shown you all the matches
Almost there!
Refining your recommendations.
This may take a few seconds...
421 Choa Chu Kang Avenue 4
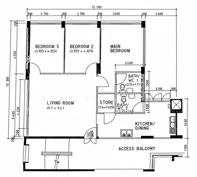
421 Choa Chu Kang Avenue 4 680421(D23) Dairy Farm / Bukit Panjang / Choa Chu Kang
Summary
421 Choa Chu Kang Avenue 4
Read more
Project details
TypeHDB
PriceS$ 569K - 589K
Completion year1992
Tenure99-year Leasehold
No. of blocks1
No. of floors12
Top facilities
Car park
DeveloperHousing & Development Board (HDB)
Explore PropertyGuru
Properties by ownership





















