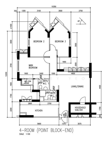
391 Bukit Batok West Avenue 5 - 4 Units for Sale
Map View
We’ve shown you all the matches
Almost there!
Refining your recommendations.
This may take a few seconds...
391 Bukit Batok West Avenue 5
391 Bukit Batok West Avenue 5 650391(D23) Dairy Farm / Bukit Panjang / Choa Chu Kang
Summary
391 Bukit Batok West Avenue 5
Read more
Project details
TypeHDB
PriceS$ 560K - 580K
Completion year2003
Tenure99-year Leasehold
No. of blocks1
No. of floors25
DeveloperHousing & Development Board (HDB)
Explore PropertyGuru
Properties by ownership

























