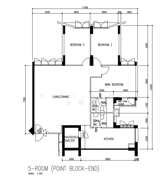
207B Compassvale Lane - 4 Units for Sale
Map View
We’ve shown you all the matches
Almost there!
Refining your recommendations.
This may take a few seconds...
207B Compassvale Lane
207B Compassvale Lane 543207(D19) Hougang / Punggol / Sengkang
Summary
207B Compassvale Lane
Read more
Project details
TypeHDB
PriceS$ 698K - 888K
Completion year2003
Tenure99-year Leasehold
No. of blocks1
No. of floors16
DeveloperHousing & Development Board (HDB)
Explore PropertyGuru
Properties by ownership













