207A Compassvale Lane - 2 Units for Sale
Map View
We’ve shown you all the matches
Almost there!
Refining your recommendations.
This may take a few seconds...
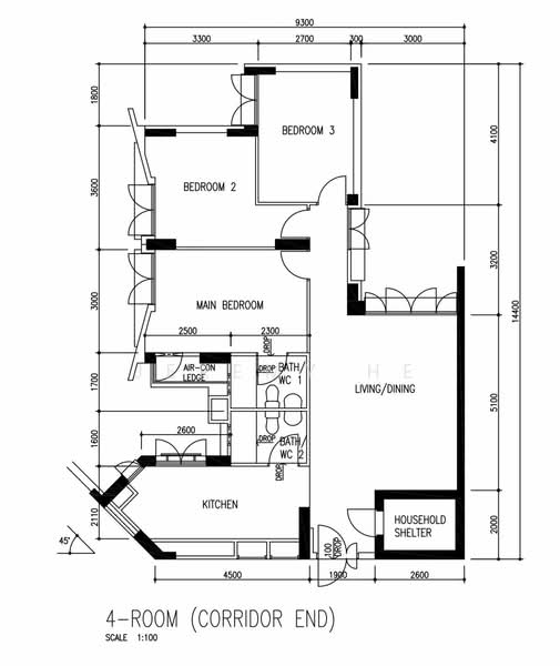
207A Compassvale Lane
207A Compassvale Lane 542207(D19) Hougang / Punggol / Sengkang
Summary
207A Compassvale Lane
Read more
Project details
TypeHDB
PriceS$ 572K - 575K
Completion year2003
Tenure99-year Leasehold
No. of blocks1
No. of floors16
DeveloperHousing & Development Board (HDB)
Explore PropertyGuru
Properties by ownership



