168 Bukit Batok West Avenue 8 - 1 Units for Sale
Map View
We’ve shown you all the matches
Almost there!
Refining your recommendations.
This may take a few seconds...
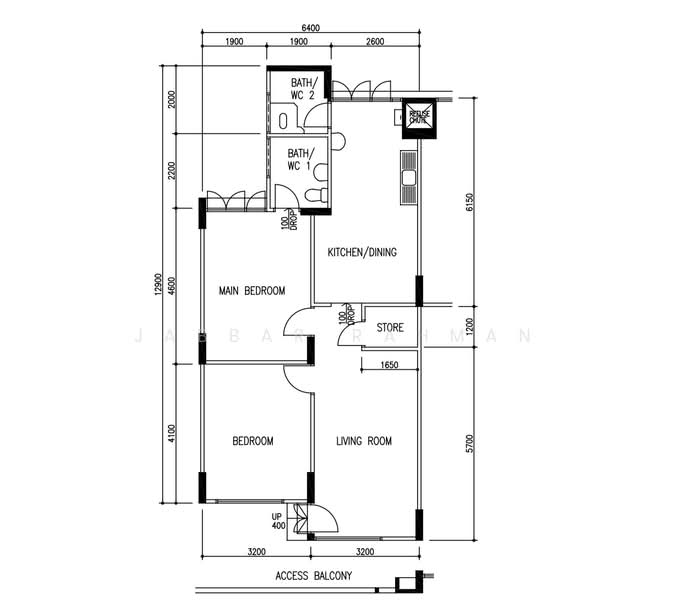
168 Bukit Batok West Avenue 8
168 Bukit Batok West Avenue 8 650168(D23) Dairy Farm / Bukit Panjang / Choa Chu Kang
Summary
168 Bukit Batok West Avenue 8
Read more
Project details
TypeHDB
Completion year1984
Tenure99-year Leasehold
No. of blocks1
No. of floors8
DeveloperHousing & Development Board (HDB)
Explore PropertyGuru
Properties by ownership









