14A Telok Blangah Crescent - 1 Units for Sale
Map View
We’ve shown you all the matches
Almost there!
Refining your recommendations.
This may take a few seconds...
14A Telok Blangah Crescent
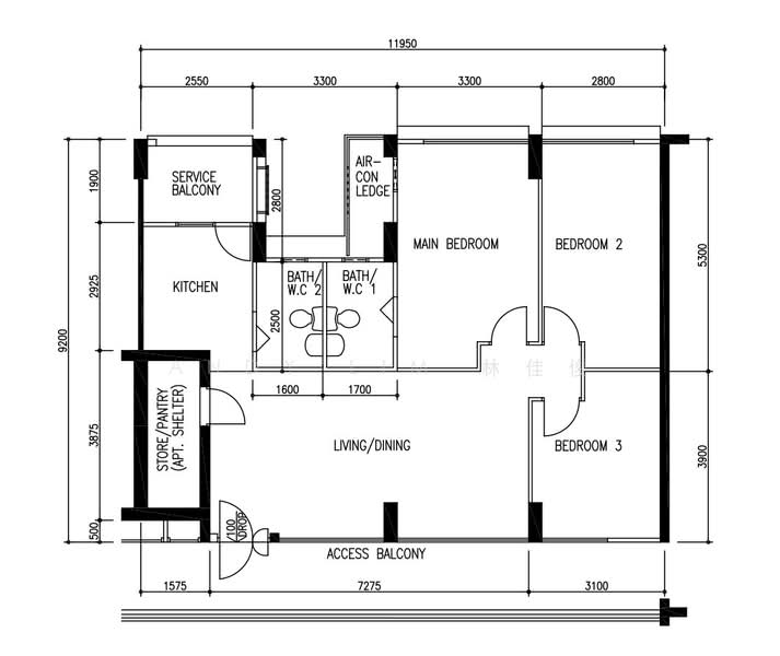
14A Telok Blangah Crescent 091014(D04) Harbourfront / Telok Blangah
Summary
14A Telok Blangah Crescent
Read more
Project details
TypeHDB
Completion year1999
Tenure99-year Leasehold
No. of blocks1
No. of floors13
Top facilities
Car park
DeveloperHousing & Development Board (HDB)
Explore PropertyGuru
Properties by ownership


























