138 Jalan Bukit Merah - 1 Units for Sale
Map View
We’ve shown you all the matches
Almost there!
Refining your recommendations.
This may take a few seconds...
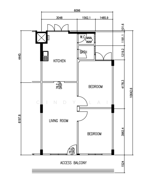
138 Jalan Bukit Merah
138 Jalan Bukit Merah 160138(D04) Harbourfront / Telok Blangah
Summary
138 Jalan Bukit Merah
Read more
Project details
TypeHDB
Completion year1983
Tenure99-year Leasehold
No. of blocks1
No. of floors10
Top facilities
Car park
DeveloperHousing & Development Board (HDB)
Explore PropertyGuru
Properties by ownership






